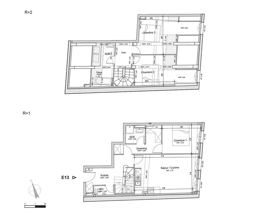
Appartement T3 n°E13 à Beauvais (60000)
Prix : nous consulter
Hôtel du Lion d'Or DF à Beauvais
Appartement
T3 / F3 / 3 pièces
87 m² habitables
1er étage
Sud-est
2 chambres
Station. 1
À noter
- Beauvais
- 4ème trimestre 2022
- Investissement locatif
- Votre suivi personnalisé Peterson.fr
- Garanti prix direct promoteur
Prestations et équipements
À propos du programme
En poussant la porte cochère, on découvre le charme des façades en colombages entourant une cour pavée et arborée. On se trouve dans un véritable havre de paix au plein centre-ville commerçant.
Le projet de réhabilitation des 5 bâtiments donnera naissance à de beaux appartements et maisons de ville dont certains bénéficieront d’une terrasse ou d’un jardin. Tous auront le privilège de cette cour intérieure protégée de l’animation de la ville.
Beauvais
Livré

Accédez à notre page dédiée au programme "Hôtel du Lion d'Or DF" pour tout savoir sur la résidence, ses prestations et son quartier.
Autres biens disponibles
Le programme neuf Hôtel du Lion d'Or DF, situé dans la ville de Beauvais, est composé de 3 logements neufs de type duplex répartis en T2, T3, livrés au 4ème trimestre 2022 et destinés au projet : investissement locatif. Ce programme neuf est éligible au dispositif Déficit Foncier pour investir à Beauvais.
N° de lot
Surface
Commodités
Étage
Exposition

