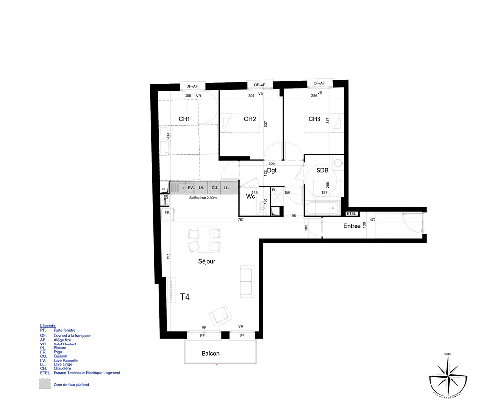
Appartement T4 n°1005 à La Madeleine (59110)
Prix : nous consulter
L'interface à La Madeleine
À noter
- La Madeleine
- Livraison 4ème trimestre 2026
- Résidence principale/secondaire
- Investissement locatif
- Votre suivi personnalisé Peterson.fr
- Garanti prix direct promoteur
Prestations et équipements
À propos du programme
Situé rue du Général de Gaulle, axe central et commerçant de la ville, L'INTERFACE bénéficie d'un emplacement idéal. Voisine de Lille, La Madeleine offre un cadre verdoyant, calme et sain. D'architecture contemporaine, cette résidence se compose de 29 logements allant du 2 au 4 pièces. Les appartements bénéficient tous d'une place de parking, ainsi que d'un espace extérieur.
Laissez-vous séduire par L'INTERFACE située au coeur de la ville et de la métropole lilloise.
La Madeleine
En travaux

Accédez à notre page dédiée au programme "L'interface" pour tout savoir sur la résidence, ses prestations et son quartier.
Autres biens disponibles
Venez explorer « L'interface »
Le programme immobilier neuf « L'interface » est actuellement en lancement commercial à La Madeleine. Ce programme, c'est 28 appartements neufs. À l'heure actuelle, 17 d'entre eux restent encore disponibles. Ils sont éligibles au dispositif Pinel et seront mis à disposition au 2e trimestre 2022.