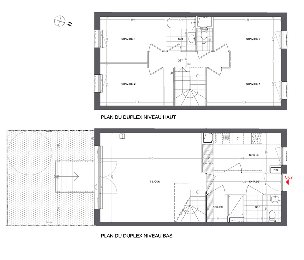
Appartement T5 n°C02 à Noisy-le-Grand (93160)
Prix : nous consulter
Confidence à Noisy-le-Grand
À noter
- Noisy-le-Grand
- 1er trimestre 2024
- Résidence principale/secondaire
- Investissement locatif
- Votre suivi personnalisé Peterson.fr
- Garanti prix direct promoteur
Prestations et équipements
À propos du programme
Située à Noisy le Grand sur un site d’exception, entre la Marne et des quartiers résidentiels, cette résidence intimiste de 35 logements du studio au 5 pièces duplex, invite chacun à construire son petit jardin secret. Habitats et nature cohabiteront en parfaite harmonie. L’éco-quartier de l’Île de la Marne projette d’offrir un lieu de vie à la qualité inégalée, où la nature se retrouve sous toutes ses formes. Le nouveau parc s’étire sur 5,6 hectares en bords de Marne, un grand espace de liberté qui abritera des jardins partagés, des espaces de pique-nique, des parcours de santé, ponctués ci et là par des lieux de détente mais aussi une crèche et une boulangerie directement accessibles à quelques pas de la résidence. L'architecture se pare de bois, l'expession même de l'esprit du projet, avec sa superstructure composée à 75% de bois. Associée aux tuiles de terre cuite, l'ensemble s'intègre parfaitement dans l'environnement verdoyant où la nature confère une atmosphère à la fois sereine et vivifiante. CONFIDENCE offre à la majorité des logements un espace extérieur privé : balcons, loggias, jardins ou terrasses. La résidence sera certifiée NF Habitat HQE avec certains logements à énergie passive permettant de mieux maîtriser les consommations d'énergie, et sera raccordée au réseau de chaleur urbain pour la production de chauffage et d'eau chaude sanitaire garantissant une réduction des charges pour chacun.
Noisy-le-Grand
Livré

Accédez à notre page dédiée au programme "Confidence" pour tout savoir sur la résidence, ses prestations et son quartier.


