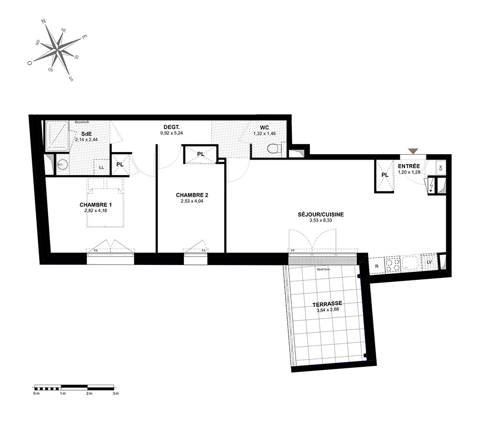
Appartement T3 n°B03 à Guérande (44350)
Prix : nous consulter
Le Domaine Saint-Michel à Guérande
À noter
- Guérande
- 2ème trimestre 2025
- Résidence principale/secondaire
- Investissement locatif
- Votre suivi personnalisé Peterson.fr
- Garanti prix direct promoteur
Prestations et équipements
À propos du programme
Les points forts de la résidence : Quartier historique prestigieux, architecture contemporaine, appartements neufs du studio au 4 pièces avec balcons, terrasses et jardins privatifs
Le Domaine Saint-Michel s'inscrit dans un environnement exceptionnel à quelques pas de la majestueuse porte Saint-Michel et de son centre-ville animé et plein de charme. Cette résidence neuve à taille humaine s'implante au coeur d'un parc paysager. Elle répartit 46 appartements sur 2 bâtiments restaurés dans l'esprit du patrimoine. Certains logements bénéficient de superbes salons cathédrales.
Guérande
Livré

Accédez à notre page dédiée au programme "Le Domaine Saint-Michel" pour tout savoir sur la résidence, ses prestations et son quartier.
Autres biens disponibles
Le programme « Le Domaine Saint-michel » s'intègre dans le marché immobilier local
« Le Domaine Saint-michel » vient augmenter le parc immobilier neuf de Guérande. Ce projet, c'est 4 appartements neufs. Pour un investissement locatif, une résidence principale ou secondaire, ils peuvent vous intéresser (ils sont de type T2 et T3). Il convient de noter qu'ils sont éligibles au dispositif Pinel. Pour investir les lieux, ce sera au 3e trimestre 2023.


