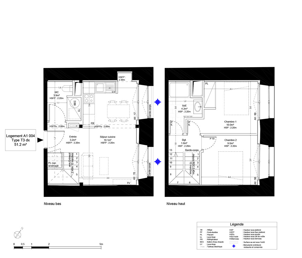
Appartement T3 n°A1004 à Blois (41000)
Prix : nous consulter
Hotel Dieu à Blois
À noter
- Blois
- Livraison 4ème trimestre 2027
- Investissement locatif
- Votre suivi personnalisé Peterson.fr
- Garanti prix direct promoteur
Ce programme propose des biens éligibles aux dispositifs de défiscalisation suivant :
Prestations et équipements
À propos du programme
À Blois, l’Hôtel-Dieu du XIIIe siècle, a su au fil des années garder son élégance architecturale. Afin de sauvegarder ce joyau du patrimoine français, Histoire & Patrimoine réhabilite ce magnifique site et va y aménager 97 logements.
Éligible au dispositif fiscal Malraux, investir à l’Hôtel-Dieu vous permet de faire fructifier votre patrimoine tout en accomplissant une mission d’intérêt général.

Accédez à notre page dédiée au programme "Hotel Dieu" pour tout savoir sur la résidence, ses prestations et son quartier.
Autres biens disponibles
Découvrez le projet neuf « Hotel Dieu »
Blois dispose du programme immobilier neuf « Hotel Dieu ». 57 duplex et appartements neufs sont présentés dans ce programme. Allant du T1 au T4 bis, ils s'adressent aux personnes qui veulent s'orienter vers un investissement locatif. Nous pouvons voir qu'ils sont éligibles au dispositif Malraux et prévus pour être terminés fin juin 2025.

