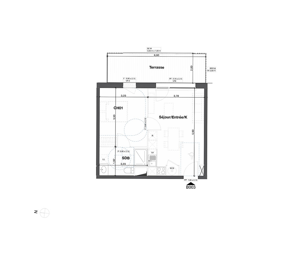
Appartement T2 n°B03 à Camblanes-et-Meynac (33360)
Prix : nous consulter
Les Villages d'Or de Camblanes et Meynac à Camblanes-et-Meynac
À noter
- Camblanes-et-Meynac
- 1er trimestre 2025
- Résidence principale/secondaire
- Investissement locatif
- Votre suivi personnalisé Peterson.fr
- Garanti prix direct promoteur
Prestations et équipements
À propos du programme
La résidence abrite 64 appartements de 2 ou 3 pièces, répartis sur 4 batiments en rez de chaussée et 1er étage uniquement, le tout desservi par ascenseurs.
26 places de stationnements aériens complètent le programme, ainsi qu'un club house devant lequel trone la placette de la résidence, avec son traditionnel boulodrome.
Camblanes-et-Meynac
Livré

Accédez à notre page dédiée au programme "Les Villages d'Or de Camblanes et Meynac" pour tout savoir sur la résidence, ses prestations et son quartier.
Autres biens disponibles
Venez explorer « Les Villages D'or De Camblanes Et Meynac »
Le projet immobilier « Les Villages D'or De Camblanes Et Meynac », qui offre des biens neufs, est implanté à Camblanes-et-Meynac. 33 appartements neufs sont compris dans ce projet. De type T2 et T3, ils peuvent servir de résidence principale ou secondaire et permettent aussi l'investissement locatif. Au premier trimestre 2025, ils seront mis à disposition des habitants. De plus, sachez qu'ils sont éligibles au dispositif Pinel.

