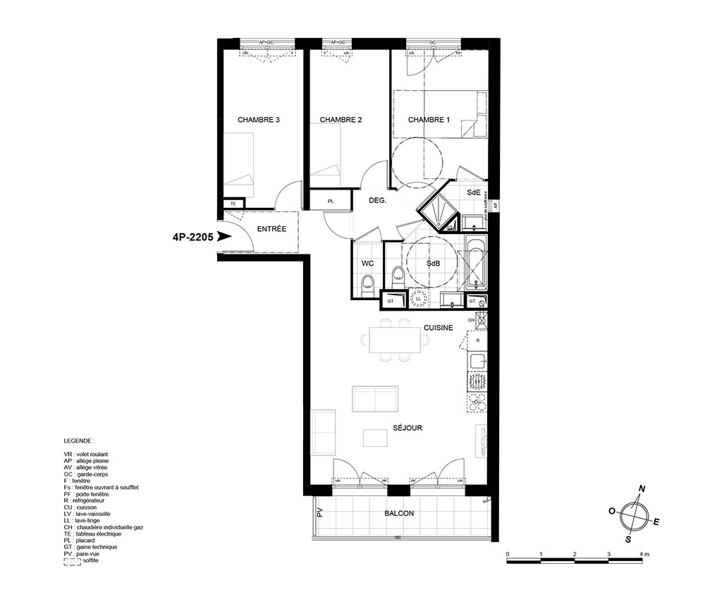
Appartement T4 n°2205 à Chennevières-sur-Marne (94430)
Prix : nous consulter
L'Envers à Chennevières-sur-Marne
À noter
- Chennevières-sur-Marne
- Livraison 1er trimestre 2026
- Résidence principale/secondaire
- Investissement locatif
- Votre suivi personnalisé Peterson.fr
- Garanti prix direct promoteur
Prestations et équipements
À propos du programme
L’ENVERS propose de beaux appartements déclinés du studio au 4 pièces et répartis au sein de deux bâtiments alignés sur l’avenue Claire. Les plans ont fait l’objet d’une attention toute particulière. Ils révèlent des intérieurs fonctionnels et bien agencés incluant un vaste séjour avec une cuisine ouverte, des chambres confortables et des suites parentales avec salle d’eau attenante au sein de quelques 4 pièces.
Les appartements traversants apportent une luminosité dans l’ensemble des pièces tout au long de la journée. De belles expositions plein sud s’ouvrent au calme du coeur d’îlot et laissent la lumière naturelle sublimer les pièces de vie.
Chennevières-sur-Marne
En travaux

Accédez à notre page dédiée au programme "L'Envers" pour tout savoir sur la résidence, ses prestations et son quartier.
Autres biens disponibles
« L'Envers » : présentation du nouveau projet immobilier
Chennevières-sur-Marne intègre le projet « L'Envers » à son parc immobilier. Ce programme, c'est 35 appartements neufs. Allant du T1 au T4, ils sont adaptés à l'investissement locatif mais peuvent également convenir pour une résidence principale ou secondaire. Vous serez libres de disposer de votre bien, éligible au dispositif Pinel, fin décembre 2024.


