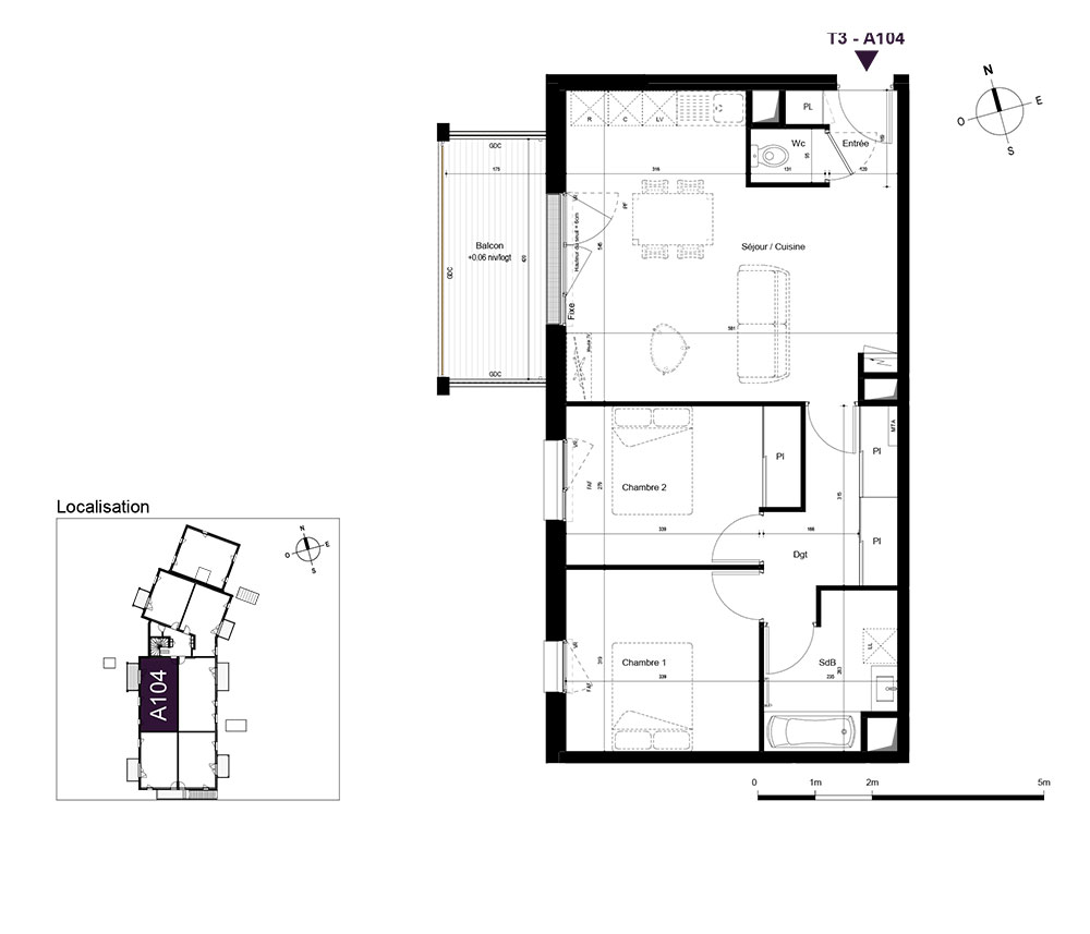
Appartement T3 n°A104 à Saint-Malo (35400)
Prix : nous consulter
Osmoz à Saint-Malo
À noter
- Saint-Malo
- Livraison 4ème trimestre 2025
- Résidence principale/secondaire
- Investissement locatif
- Votre suivi personnalisé Peterson.fr
- Garanti prix direct promoteur
Prestations et équipements
À propos du programme
Ösmoz représente l’harmonie, le plaisir d’être ensemble et de partager des moments de convivialité. C’est également vivre en synergie avec la nature. Inspiré du style de vie Hygge, cet art de vivre danois prône le vivre ensemble, la déconnexion de sa journée de travail pour mieux se reconnecter avec soi-même et avec l’autre. Ösmoz c’est un nouveau lieu de vie inscrit dans son paysage à proximité immédiate de Saint-Malo. Entre ville et campagne, dans un cadre de vie vert et de qualité, Ösmoz propose des appartements du studio au 5 pièces, mais également des logements intermédiaires modulables et des maisons 5 pièces. Le cœur d’îlot végétalisé et piéton offrira des moments de partage et de convivialité avec votre famille et vos voisins, autour de la terrasse de la salle commune, la prairie ludique ou encore l’atelier bricolage. Située à 6 minutes de la plage de Rochebonne, la cité des Corsaires bénéficie de nombreux atouts et un cadre de vie exceptionnel au bord de la mer.
Saint-Malo
En travaux

Accédez à notre page dédiée au programme "Osmoz" pour tout savoir sur la résidence, ses prestations et son quartier.
Autres biens disponibles
L'essentiel du projet neuf « Osmoz »
Saint-Malo accueille le projet immobilier neuf « Osmoz ». Au sein de ce programme, on peut retrouver 48 appartements neufs. Ils peuvent parfaitement faire office de résidence principale ou secondaire ou même d'investissement locatif et sont de type T1, T2, T3 et T4. Notez dès maintenant qu'ils sont éligibles au dispositif Pinel et seront prêts à être livrés fin mars 2025.


