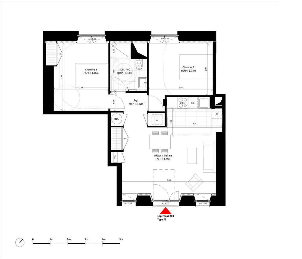
Appartement T3 n°B03 à Dourdan (91410)
Prix : nous consulter
Hotel Dieu à Dourdan
À noter
- Dourdan
- Livraison 4ème trimestre 2026
- Investissement locatif
- Votre suivi personnalisé Peterson.fr
- Garanti prix direct promoteur
À propos du programme
À mi-chemin entre Paris et Chartres, Dourdan est la rencontre bucolique de trois régions naturelles : la Beauce, l’Hurepoix et les massifs forestiers des Yvelines et de l’Essonne.
Patrimoine central de la ville de Dourdan, l’Hôtel-Dieu connaitra une renaissance unique. Ses 46 logements d’exceptions, partagés entre l’Îlot Saint-Vincent et la Maison Jean Sarran au sein de l’Hôtel-Dieu, accueilleront bientôt de nouveaux habitants tout en restant les témoins fidèles de l’Histoire du site.
Dourdan
En travaux

Accédez à notre page dédiée au programme "Hotel Dieu" pour tout savoir sur la résidence, ses prestations et son quartier.
Autres biens disponibles
Explorez le programme neuf « Hotel Dieu »
« Hotel Dieu » est un projet immobilier neuf. Il se situe à Dourdan. On y compte 24 appartements neufs. Ils peuvent tout à fait faire office de résidence principale ou secondaire ou même d'investissement locatif et sont de type T1, T2, T3 et T4. Éligibles au dispositif de déficit foncier, leur livraison est annoncée fin décembre 2025.


