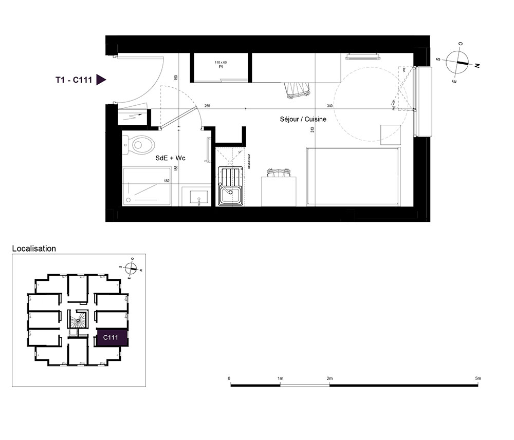
Appartement T1 n°C111 à Villejean - Beauregard Rennes (35000)
Prix : nous consulter
Constellation à Villejean - Beauregard - Rennes
À noter
- Rennes
- Livraison 3ème trimestre 2026
- Investissement locatif
- Votre suivi personnalisé Peterson.fr
- Garanti prix direct promoteur
Ce programme propose des biens éligibles aux dispositifs de défiscalisation suivant :
À propos du programme
La résidence étudiante CONSTELLATION est un projet ambitieux, entièrement en bois, qui s’inscrit dans une démarche de développement international du campus de la Rennes School of Business. La conception urbaine, paysagère et architecturale s’est naturellement orientée vers un projet d’exception dont le fil conducteur est l’ouverture sur la ville dans un écrin végétal unique.
Quartier étudiants, Zone urbaine
Villejean - Beauregard
En travaux
Avantages fiscaux

Accédez à notre page dédiée au programme "Constellation" pour tout savoir sur la résidence, ses prestations et son quartier.
Autres biens disponibles
Tout ce qu'il faut comprendre sur le nouveau programme immobilier « Constellation »
« Constellation » est un projet immobilier dans le neuf à Rennes. Dans ce projet, ce sont 36 appartements neufs qui sont proposés. De type T1, ils s'adressent aux intéressés par l'investissement locatif. Notons qu'ils sont éligibles au dispositif de loueur en meublé non professionnel (LMNP) et prévus pour être mis à disposition au troisième trimestre 2024.
