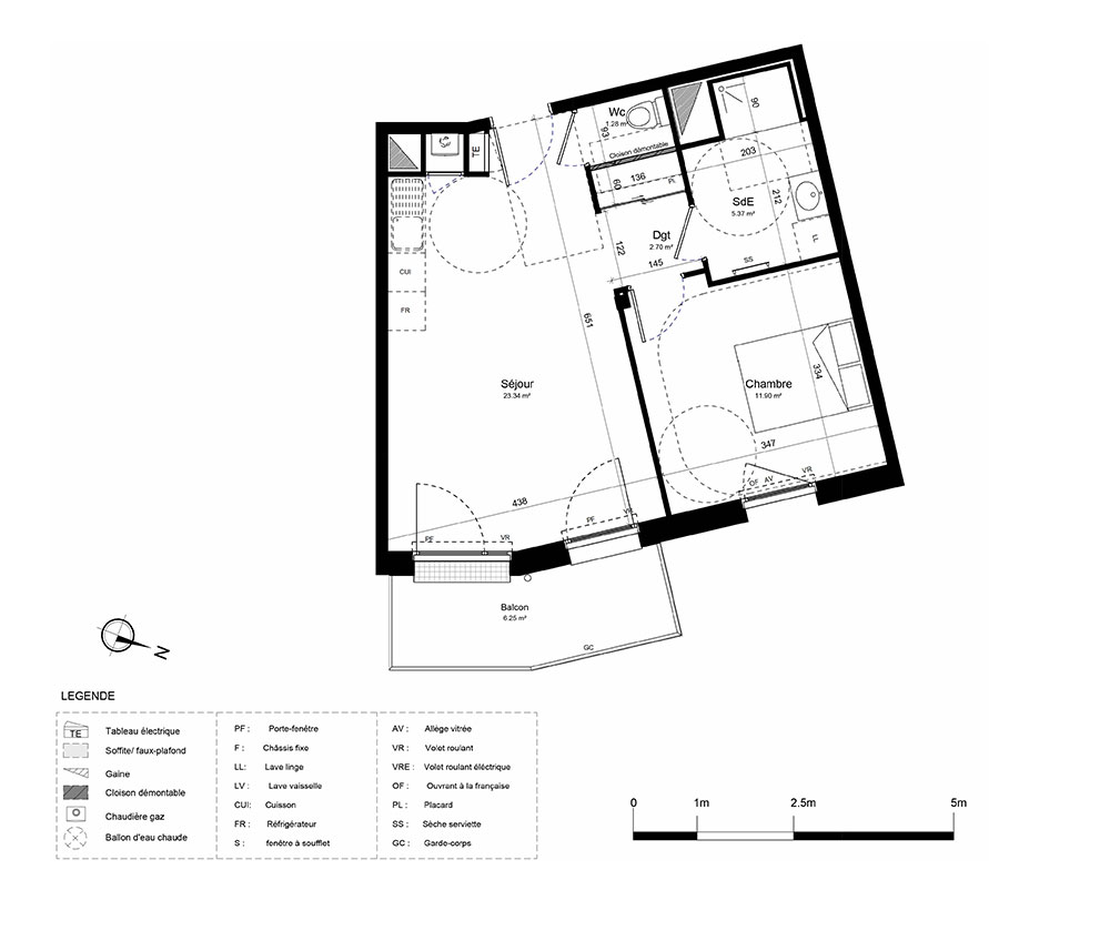
Appartement T2 n°2205 à Guilvinec (29730)
Prix : nous consulter
Ker Lohan à Guilvinec
À noter
- Guilvinec
- Livraison 4ème trimestre 2027
- Résidence principale/secondaire
- Investissement locatif
- Votre suivi personnalisé Peterson.fr
- Garanti prix direct promoteur
Prestations et équipements
À propos du programme
Au Guilvinec, embarquez pour une nouvelle adresse rare et authentique au sud du pays bigouden, dans l'un des ports les plus séduisants du Finistère, et à seulement 30 kilomètres de la gare TGV de Quimper.Tel un nouveau quartier résidentiel qui signe la renaissance du premier port de pêche artisanale français, le projet s'inscrit au coeur de la ville portuaire vous offrant un accès à la plage de la Grève Blanche à 700 m et au centre commerçant animé à seulement 350 m. Maisons livrées « clés en main » de 3 ou 4 pièces aux multiples possiblités de plans, appartements de 2 à 3 pièces, dont certains particulièrement adaptés aux seniors... Vous aurez le choix de profiter de l'art de vivre Guilviniste comme bon vous semble : à l'année ou en villégiature. Plages, balades cotières, soleil au levant et au couchant, air marin et salin, patrimoine préservé et gastronomie ancestrale de la Bretagne... Les couleurs "glaz" de la Cornouaille vous souhaitent déjà la bienvenue
Guilvinec
En travaux

Accédez à notre page dédiée au programme "Ker Lohan" pour tout savoir sur la résidence, ses prestations et son quartier.
Autres biens disponibles
Bénéficiez du nouveau programme immobilier « Ker Lohan »
« Ker Lohan » est un projet immobilier neuf qui est situé à Guilvinec. Ce programme comprend 66 maisons et appartements neufs. De type T2, T3 et T4, ils auront les atouts requis pour un investissement locatif ou pour faire office de résidence principale ou secondaire. Ils seront achevés fin décembre 2025.


