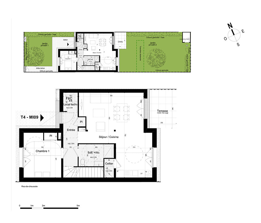
Maison T4 n°M09 à Mondeville (14120)
Prix : nous consulter
Armonia à Mondeville
À noter
- Mondeville
- Livraison 1er trimestre 2026
- Résidence principale/secondaire
- Investissement locatif
- Votre suivi personnalisé Peterson.fr
- Garanti prix direct promoteur
Prestations et équipements
À propos du programme
Le projet développe un quartier d’habitat apaisé, qui redonne de la perméabilité et du dialogue entre ces deux univers. Le végétal, positionné au cœur de la conception, offre un cadre de vie privilégié pour le quartier et ses habitants. L’écriture architecturale est soignée, elle développe une progression à travers une volumétrie qui se déploie tel un ruban montant et descendant au gré du projet ; les matériaux choisis sont nobles et performants.
La conception d’ensemble d’ARMONIA se veut ambitieuse, durable, et propose ainsi de nombreux atouts pour ses futurs habitants : de grands logements familiaux individuels et collectifs très lumineux, aux orientations multiples. De généreux espaces extérieurs privatifs ouvrant sur un écrin végétal omniprésent. De nombreux lieux de partage et de services adaptés pour les familles favorisant le bien vivre ensemble (crèche, potagers partagés, aires de jeux, lieux de promenade, locaux vélos, ...).
Mondeville
En travaux

Accédez à notre page dédiée au programme "Armonia" pour tout savoir sur la résidence, ses prestations et son quartier.
Autres biens disponibles
« Armonia », le nouveau programme immobilier
Le projet immobilier neuf « Armonia » se situe à Mondeville. Ce projet comprend 52 maisons et appartements neufs. Ils sont de type T2, T3, T4 et T5 et sont en mesure de faire office de résidence principale ou secondaire tout comme d'investissement locatif. Ils sont éligibles au dispositif Pinel. Leur livraison est prévue fin décembre 2024.




