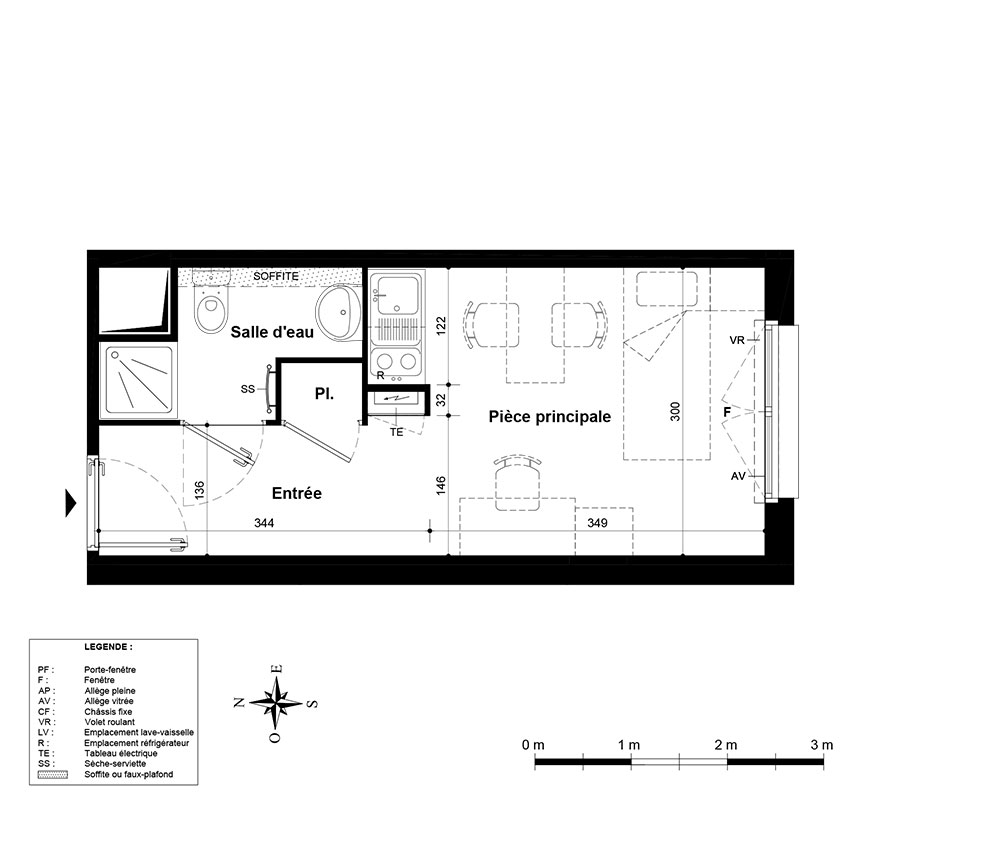
Appartement T1 n°B119 à Villeneuve-Saint-Georges (94190)
Prix : nous consulter
Villaneo Student à Villeneuve-Saint-Georges
À noter
- Villeneuve-Saint-Georges
- Livraison 3ème trimestre 2026
- Investissement locatif
- Votre suivi personnalisé Peterson.fr
- Garanti prix direct promoteur
Ce programme propose des biens éligibles aux dispositifs de défiscalisation suivant :
À propos du programme
1-3 Avenue De Melun.
Villeneuve-Saint-Georges
En travaux
Avantages fiscaux

Accédez à notre page dédiée au programme "Villaneo Student" pour tout savoir sur la résidence, ses prestations et son quartier.
Autres biens disponibles
« Villaneo Student » : présentation du nouveau projet immobilier
Le programme immobilier « Villaneo Student », qui propose des biens neufs, est implanté à Villeneuve-Saint-Georges. 123 appartements neufs composent ce projet. De type Studio, si vous cherchez un investissement locatif, ils se révéleront appropriés à votre projet. Fin septembre 2025, ils seront mis à disposition et vous pouvez aussi noter qu'ils sont éligibles au dispositif de loueur en meublé non professionnel (LMNP).






