Maison T3 n°17 à Parempuyre (33290)
Prix : nous consulter
Carré Bel Air à Parempuyre
À noter
- Parempuyre
- Livraison 1er trimestre 2027
- Résidence principale/secondaire
- Investissement locatif
- Votre suivi personnalisé Peterson.fr
- Garanti prix direct promoteur
Prestations et équipements
À propos du programme
Situé à 30 minutes de la place des Quinconces, le « Carré Bel Air » profite d’un environnement résidentiel et agréable. A la fois proche des commerces & services, des écoles, des transports en commun, et d’une nature généreuse, la résidence offre à ses habitants un cadre de vie idéal.
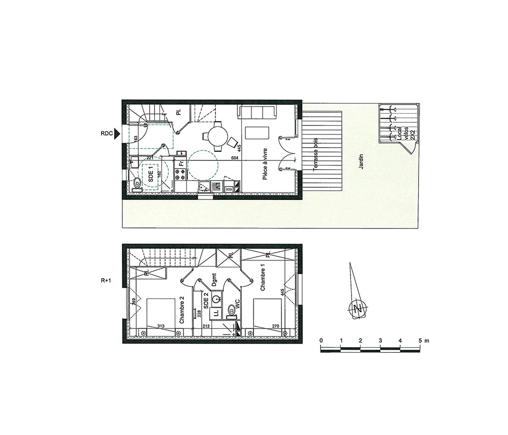
« Le Carré Bel Air » propose 21 maisons mitoyennes de type T3 et T4 duplex.Les logements disposent de beaux volumes lumineux et bien agencés. Ils s’ouvrent sur un extérieur avec jardin et terrasse. Un local à vélos individuel vient complété la palette de prestations de ces maisons au design épuré et harmonieux.
Parempuyre

Accédez à notre page dédiée au programme "Carré Bel Air" pour tout savoir sur la résidence, ses prestations et son quartier.
Autres biens disponibles
Concernant le nouveau projet immobilier « Carré Bel Air »
« Carré Bel Air » vient augmenter le parc immobilier neuf de Parempuyre. On peut compter dans ce projet 15 maisons neuves. De type T3 et T4, elles vous donneront l'occasion d'investir dans une résidence principale ou secondaire ou bien de vous lancer dans un investissement locatif. Éligibles aux dispositifs Pinel et de droit commun, elles seront livrées fin décembre 2024.




