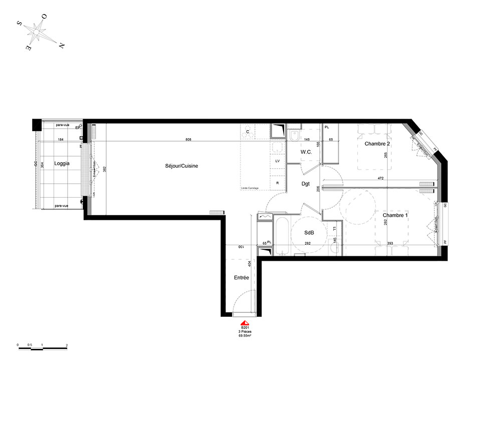
Appartement T3 n°B201 à Clamart (92140)
Prix : nous consulter
Programme neuf n°34562 à Clamart
À noter
- Clamart
- Livraison 2ème trimestre 2027
- Résidence principale/secondaire
- Investissement locatif
- Votre suivi personnalisé Peterson.fr
- Garanti prix direct promoteur
Prestations et équipements
À propos du programme
Située au Sud de Clamart, votre future résidence neuve signée Crédit Agricole Immobilier, prend place au pied de la station de tramway T6 « Pavé Blanc » reliant Paris au métro l.13 en 19 min.*. La résidence Clam'art propose 55 appartements du studio au 5 pièces, offrant de belles surfaces extérieures pour la majeure partie d’entre eux et 1 ou 2 places de stationnement. L’architecture de type art déco privilégie l’utilisation de matériaux nobles : pierre de taille massive, briquette émaillée, céramique… Cuisine et salle de bains aménagées, chauffage collectif au gaz, parquet et carrelage au sol, volets roulants électriques… L’ensemble de l’opération sera certifié RE2020, garant d’une plus grande performance énergétique et d’un plus grand confort thermique et acoustique.
Clamart
En travaux

Accédez à notre page dédiée au programme "Programme neuf n°34562" pour tout savoir sur la résidence, ses prestations et son quartier.

