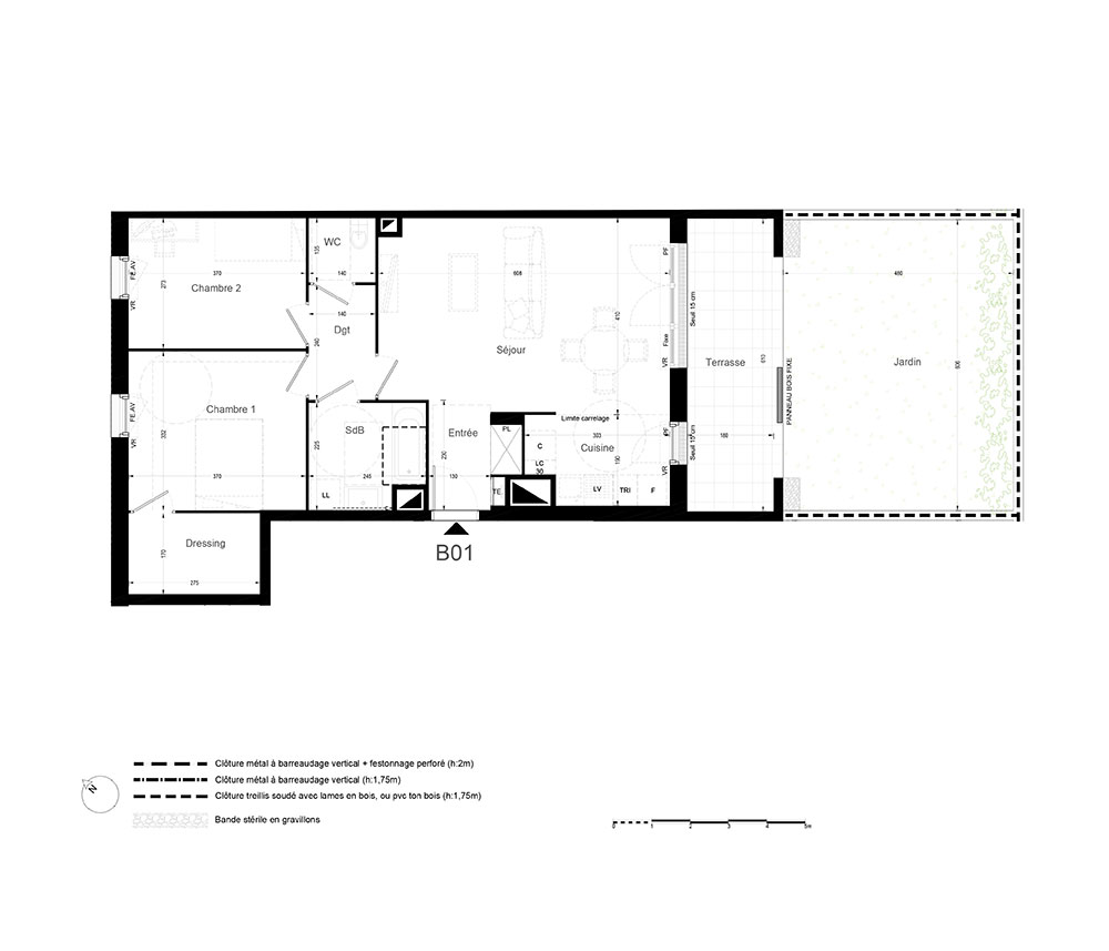
Appartement T3 n°B01 à Montigny-lès-Cormeilles (95370)
Prix : nous consulter
Le Domaine Des Cerisiers à Montigny-lès-Cormeilles
À noter
- Montigny-lès-Cormeilles
- Livraison 4ème trimestre 2027
- Résidence principale/secondaire
- Investissement locatif
- Votre suivi personnalisé Peterson.fr
- Garanti prix direct promoteur
Prestations et équipements
À propos du programme
Montigny-lès-Cormeilles est une charmante commune française, située dans le département du Val-d'Oise. Elle séduit les familles à la recherche de calme et d'un environnement verdoyant à quelques km de Paris. Bénéficiez d'un confort au quotidien avec des infrastructures de qualité à quelques minutes de votre résidence : école élémentaire Emile Glay à 2min à pied (210m), collège Camille Claudel à 5min (400m), centre culturel, école de musique, bibliothèque mais également gymnases, piscine et terrains de sports. Pour vos courses, profitez du marché de produits frais, des commerces de proximité ou des grandes surfaces à 5min. Vous trouverez également le Centre commercial Quai des Marques à 5min en voiture. Vous êtes finalement à une quinzaine de minutes en bus de la gare RER C qui vous conduira vers la Gare du Nord, Champs de Mars Tour Eiffel ou encore St Michel Notre Dame. C’est donc à Montigny-Lès-Cormeilles que ICADE a choisi de réaliser votre toute nouvelle résidence à l’architecture contemporaine composée d’appartements du 2 au 5 pièces aux prestations soignées pour votre bien-être. Le Domaine des Cerisiers vous ouvre les portes d’une qualité de vie privilégiée, au calme, au cœur d'un écrin de verdure. La plupart des appartements bénéficient d'agréables extérieurs avec, pour certains, une vue sur le parc.
Montigny-lès-Cormeilles
En travaux

Accédez à notre page dédiée au programme "Le Domaine Des Cerisiers" pour tout savoir sur la résidence, ses prestations et son quartier.



