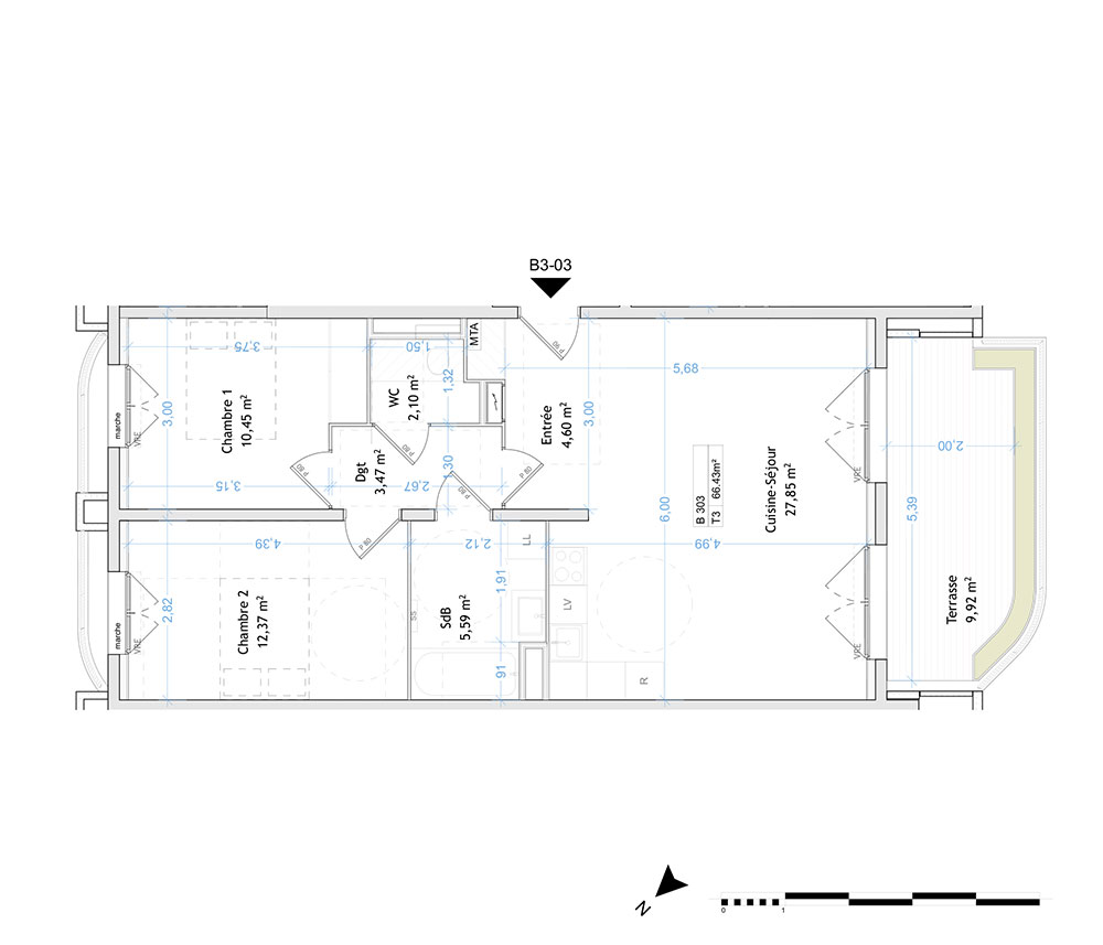
Appartement T3 n°01B303 à Montpellier (34080)
Prix : nous consulter
Residence Theia à Montpellier
À noter
- Montpellier
- Livraison 1er trimestre 2027
- Résidence principale/secondaire
- Investissement locatif
- Votre suivi personnalisé Peterson.fr
- Garanti prix direct promoteur
Prestations et équipements
À propos du programme
Proposant une nouvelle façon d’habiter la ville, Jardins Secrets est un ilot de fraicheur urbain, au service du bien-être de ses habitants et de la durabilité. Ses façades, tout en courbes, sculptent les ombres et font danser la lumière. Les 3 bâtiments sont largement ouverts sur des jardins suspendus, offrant depuis les logements du 2 au 5 pièces, intimité, calme et luminosité. Nous vous proposons des logements bas carbone et végétalisés, pour la plupart traversants et pourvus de places de stationnement en sous-sol.
Montpellier
En travaux

Accédez à notre page dédiée au programme "Residence Theia" pour tout savoir sur la résidence, ses prestations et son quartier.
Autres biens disponibles
Venez explorer « Résidence Theia »
Montpellier accueille le projet immobilier neuf « Résidence Theia ». Ce programme comprend 9 appartements neufs. De type T2 et T3, ils vous permettront d'investir dans une résidence principale ou secondaire ou bien de vous lancer dans un investissement locatif. Ils sont éligibles au dispositif Pinel et sont prévus au premier trimestre 2025.