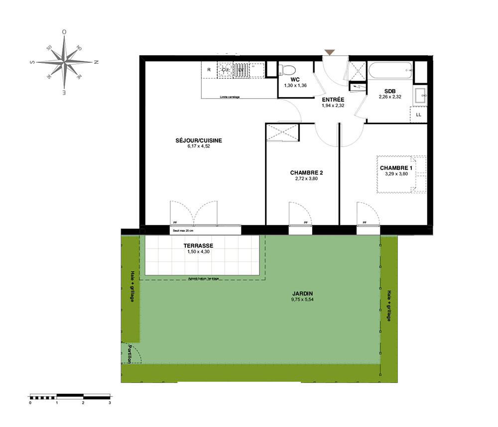
Appartement T3 n°A001 à Champigny-sur-Marne (94500)
Prix : nous consulter
Le Dôme de Verdun à Champigny-sur-Marne
À noter
- Champigny-sur-Marne
- Livraison 4ème trimestre 2027
- Résidence principale/secondaire
- Investissement locatif
- Votre suivi personnalisé Peterson.fr
- Garanti prix direct promoteur
Prestations et équipements
À propos du programme
Le programme immobilier neuf Le Dôme de Verdun vous réserve un environnement qualitatif à proximité du centre historique. Atouts mobilité : gare RER E Les Boullereaux Champigny à 12 min en bus et future gare Champigny Centre* des lignes 15 Sud et Est du Grand Paris Express à 500 m. Programme RE 2020 proposant certains appartements à double orientation et un jardin commun paysager.
Champigny-sur-Marne
En travaux

Accédez à notre page dédiée au programme "Le Dôme de Verdun" pour tout savoir sur la résidence, ses prestations et son quartier.
Autres biens disponibles
« Le Dôme de Verdun » : le nouveau programme immobilier se dévoile
Champigny-sur-Marne est le berceau du projet immobilier neuf « Le Dôme de Verdun ». Au cœur de ce programme, on retrouve 58 appartements neufs. Ils sont de type T2, T3 et T4 et sont en mesure de faire office de résidence principale ou secondaire tout comme d'investissement locatif. À la fin de l'année 2025, ils seront mis à disposition et vous pouvez également noter qu'ils sont éligibles au dispositif Pinel.



