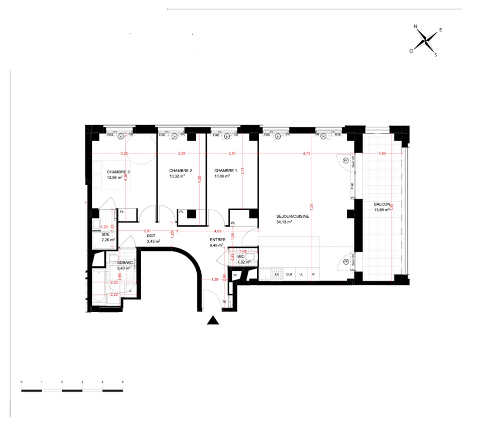
Appartement T4 n°C401 à Aubervilliers (93300)
Prix : nous consulter
Les Terrasses Claudel à Aubervilliers
À noter
- Aubervilliers
- Livraison 4ème trimestre 2027
- Résidence principale/secondaire
- Investissement locatif
- Votre suivi personnalisé Peterson.fr
- Garanti prix direct promoteur
Prestations et équipements
À propos du programme
La résidence Les Terrasses de Claudel se situe aux portes de Paris, entre la ville de Pantin et d’Aubervilliers en Seine-Saint-Denis. La résidence propose des appartements du studio au 3 pièces, ouverts sur un balcon, une terrasse, ou un jardin privatif pour la plupart. La résidence se trouve à proximité de nombreuses lignes de bus, à 500 mètres* de la station de métro « Fort d’Aubervilliers » sur la ligne 7 et à proximité de la future ligne 15. Cet emplacement bénéficie d'une connexion avec toute la métropole du Grand-Paris. Proche des commerces et des écoles, un emplacement prisé idéal pour habiter ou investir.
Aubervilliers
En travaux

Accédez à notre page dédiée au programme "Les Terrasses Claudel" pour tout savoir sur la résidence, ses prestations et son quartier.
Autres biens disponibles
Découvrez le nouveau projet immobilier « Les Terrasses Claudel »
« Les Terrasses Claudel » est un programme immobilier neuf situé à Aubervilliers. Ce programme immobilier offre 75 appartements, tous neufs. Ils sont de type T1, T2, T3, T4 et T5 et adaptés aussi bien à une résidence principale ou secondaire et à un investissement locatif. Ils sont éligibles au dispositif Pinel. Leur livraison est annoncée au premier trimestre 2026.
Investissez malin !
Ce programme peut bénéficier de nombreux avantages financiers adaptés à votre projet immobilier neuf :
Je recherche un bien pour...

