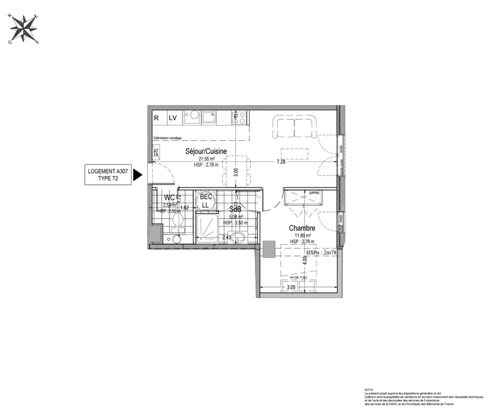
Appartement T2 n°A307 à Troyes (10000)
Prix : nous consulter
Les Magasins Reunis à Troyes
À noter
- Troyes
- Livraison 4ème trimestre 2028
- Investissement locatif
- Votre suivi personnalisé Peterson.fr
- Garanti prix direct promoteur
Ce programme propose des biens éligibles aux dispositifs de défiscalisation suivant :
À propos du programme
Située au cœur du centre-ville historique de Troyes, la Demeure Les Magasins Réunis bénéficie d’un environnement privilégie´, a` 1h30 de Paris Gare de l’Est. La gare SNCF se situe a` 10 minutes a` pied de la Demeure. La Maison des Magasins Réunis sera transformée en 82 logements aux espaces généreux, du studio au 5 pièces dont des duplex. Certains appartements bénéficieront d’un espace extérieur. La création de 2 cours intérieures permettra d’apporter une belle lumière naturelle aux logements aux multiples orientations. Le lien a` la ville va être conserve´ par les commerces qui vont se développer au rez-de-chaussée.

Accédez à notre page dédiée au programme "Les Magasins Reunis" pour tout savoir sur la résidence, ses prestations et son quartier.
Autres biens disponibles
Une idée du nouveau programme immobilier « Les Magasins Reunis »
Le projet immobilier neuf « Les Magasins Reunis » se situe à Troyes. Ce programme comprend 74 duplex et appartements neufs. Ils sont de type T1, T1 bis, T2, T3, T3 bis, T4, T4 bis et T5 et peuvent faire office d'investissement locatif. Leur livraison est annoncée à la fin de l'année 2026 et ils sont éligibles au dispositif Malraux.



