Appartement T2 n°LO302 à Avrillé (49240)
Prix : nous consulter
Lineal à Avrillé
Appartement
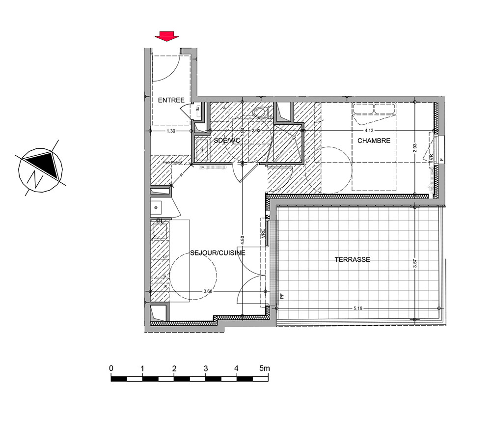
T2 / F2 / 2 pièces
40,53 m² habitables
3ème étage
Sud-est
1 chambre
Station. 1
Terrasse 18 m²
À noter
- Avrillé
- Livraison 4ème trimestre 2025
- Résidence principale/secondaire
- Investissement locatif
- Votre suivi personnalisé Peterson.fr
- Garanti prix direct promoteur
Prestations et équipements
À propos du programme
Avenue du Maréchal Leclerc.
Avrillé
En travaux
Livraison 4ème trimestre 2025

Accédez à notre page dédiée au programme "Lineal" pour tout savoir sur la résidence, ses prestations et son quartier.

