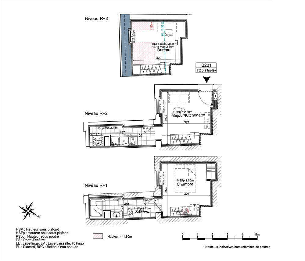
Appartement T2 n°B201 à Dieppe (76200)
Prix : nous consulter
Les Balcons De Dieppe à Dieppe
À noter
- Dieppe
- Livraison 4ème trimestre 2026
- Investissement locatif
- Votre suivi personnalisé Peterson.fr
- Garanti prix direct promoteur
Ce programme propose des biens éligibles aux dispositifs de défiscalisation suivant :
À propos du programme
À quelques mètres seulement de la belle église gothique Saint-Jacques et du port de Dieppe se dresse l’édifice les Balcons de Dieppe. Composé de deux ensembles, l’un de brique et l’autre de pierre plus claire rappelant les falaises dieppoises, il est intégré au secteur sauvegardé de la ville.
Les Balcons de Dieppe proposeront 5 logements déclinés du studio au 3 pièces. Pour la plupart traversants, les futurs appartements offriront à leurs habitants des volumes généreux à vivre accompagnés parfois de balcons offrant de belles vues sur l’une des places les plus emblématiques de Dieppe.

Accédez à notre page dédiée au programme "Les Balcons De Dieppe" pour tout savoir sur la résidence, ses prestations et son quartier.

