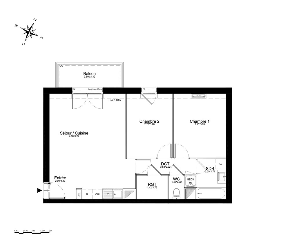
Appartement T3 n°A203 à Évry-Courcouronnes - Courcouronnes (91080)
Prix : nous consulter
Le Domaine du Bois de la Garenne à Évry-Courcouronnes - Courcouronnes
À noter
- Évry-Courcouronnes - Courcouronnes
- Livraison 1er trimestre 2027
- Résidence principale/secondaire
- Investissement locatif
- Votre suivi personnalisé Peterson.fr
- Garanti prix direct promoteur
Prestations et équipements
À propos du programme
Le programme immobilier neuf Le Domaine du Bois de la Garenne est une opération d'envergure. Elle s'invite dans un secteur pavillonnaire très paisible à deux pas d'une forêt protégée constituant la limite communale avec Bondoufle. La configuration de ce programme RE 2020 lui permet de proposer une majorité d'intérieurs à double orientation.
Évry-Courcouronnes - Courcouronnes
En travaux

Accédez à notre page dédiée au programme "Le Domaine du Bois de la Garenne" pour tout savoir sur la résidence, ses prestations et son quartier.
Autres biens disponibles
Introduction au projet neuf « Le Domaine du Bois de la Garenne »
Évry-Courcouronnes dispose du programme immobilier neuf « Le Domaine du Bois de la Garenne ». Ce programme comprend 57 maisons et appartements neufs. De type T2, T3, T4, T5 et T6, ils conviendront aux attentes des personnes à la recherche d'une résidence principale ou secondaire tout comme à celles qui veulent se diriger vers un investissement locatif. Notez qu'ils sont éligibles au dispositif Pinel.




