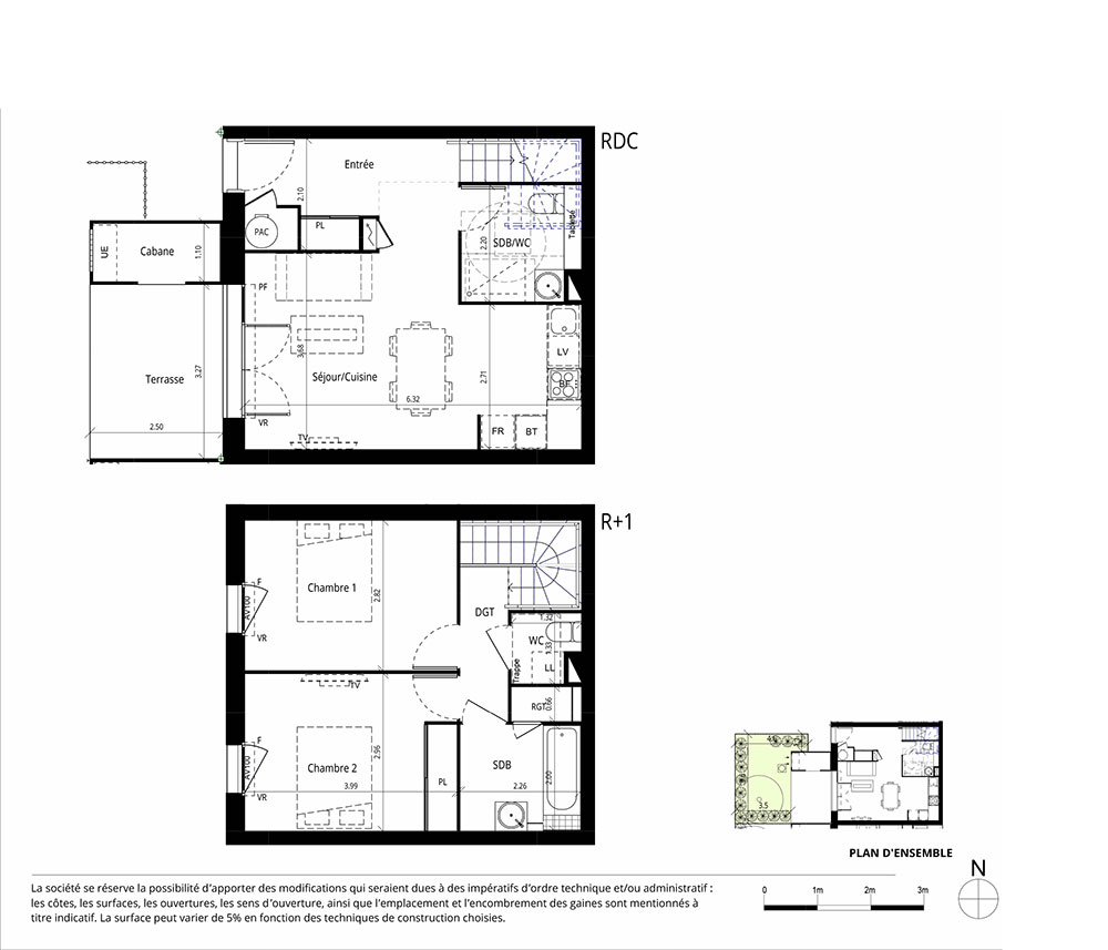
Appartement T3 n°B006 à Messanges (40660)
Prix : nous consulter
Hesta à Messanges
À noter
- Messanges
- 3ème trimestre 2025
- Résidence principale/secondaire
- Investissement locatif
- Votre suivi personnalisé Peterson.fr
- Garanti prix direct promoteur
Prestations et équipements
À propos du programme
Située dans le centre de Messanges, et à proximité immédiate de la forêt des Landes et de ses plages, le programme Sporting Hesta offre à ses résidents un cadre de vie unique.
Avec 38 logements, allant du T2 duplex au T5 duplex, tous dotés d'espaces extérieurs sans vis-à-vis, notre nouvelle signature a été pensée pour votre bien être.
S’intégrant parfaitement à son environnement pavillonnaire, cette résidence à taille humaine vous séduira par son architecture de type Landaise. Composée de trois îlots disposés face à face, l’aspect convivial de la résidence et le respect des volumes architecturaux lui offrent une atmosphère cosy.
Messanges
Livré

Accédez à notre page dédiée au programme "Hesta" pour tout savoir sur la résidence, ses prestations et son quartier.
Autres biens disponibles
Les grandes lignes du programme neuf « Hesta »
« Hesta » est un projet immobilier neuf situé à Messanges. Au cœur de ce programme, on peut retrouver 20 duplex et appartements neufs. Allant du T2 au T5, ils répondront à la fois aux besoins d'une recherche en résidence principale ou secondaire ainsi qu'à ceux d'un investissement locatif. Éligibles au dispositif Pinel, ils seront terminés au troisième trimestre 2025.
Investissez malin !
Ce programme peut bénéficier de nombreux avantages financiers adaptés à votre projet immobilier neuf :
Je recherche un bien pour...



