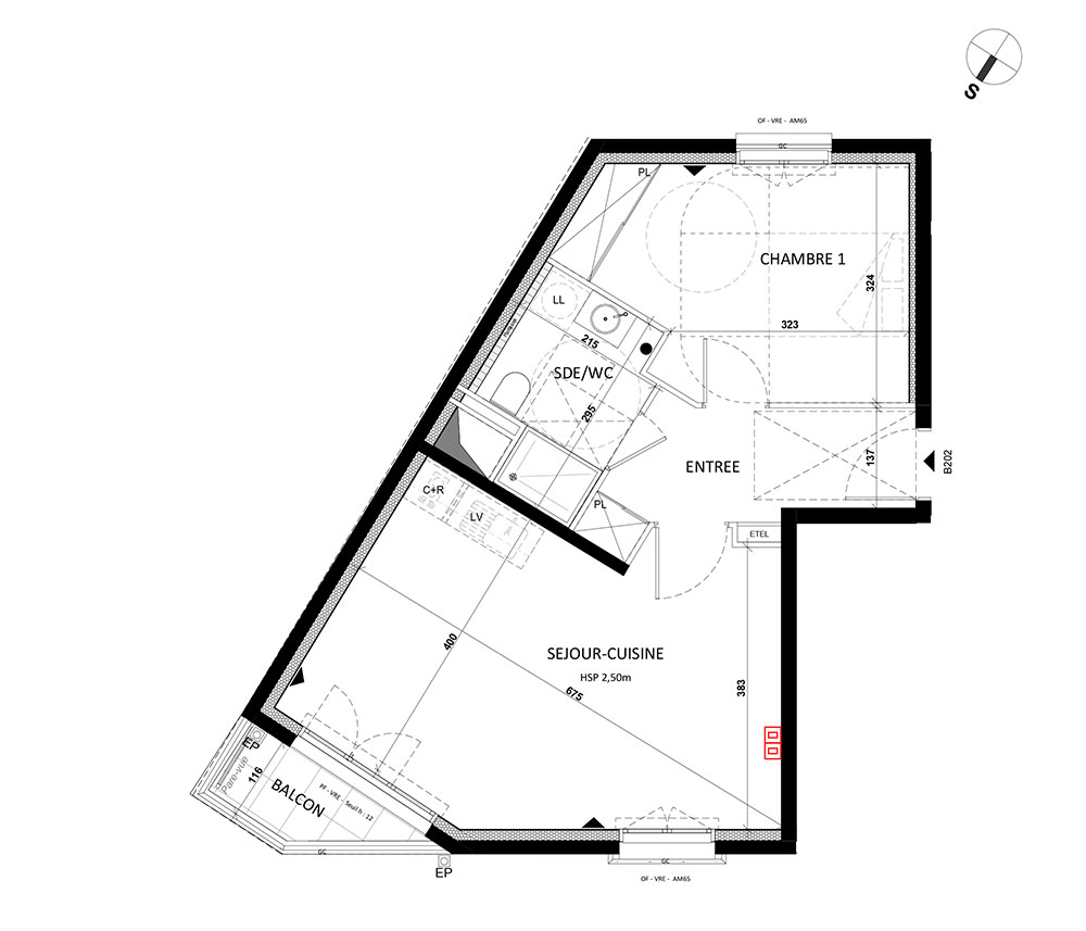
Appartement T2 n°B202 à Fontenay-aux-Roses (92260)
Prix : nous consulter
Villa Fontana à Fontenay-aux-Roses
À noter
- Fontenay-aux-Roses
 - Livraison 2ème trimestre 2026
 - Résidence principale/secondaire
 - Investissement locatif
 
- Votre suivi personnalisé Peterson.fr
 - Garanti prix direct promoteur
 
Prestations et équipements
À propos du programme
La résidence Villa Fontana, située place de la Cavée, propose des appartements du studio au 5 pièces. Vous profiterez d’un emplacement idéal avec les commerces de proximité, de prestations soignées et d’un environnement résidentiel privilégié.
Fontenay-aux-Roses
En travaux

Accédez à notre page dédiée au programme "Villa Fontana" pour tout savoir sur la résidence, ses prestations et son quartier.
Autres biens disponibles
Tout ce qu'il faut savoir sur le nouveau programme immobilier « Villa Fontana »
« Villa Fontana » est un programme immobilier neuf situé à Fontenay-aux-Roses. Dans ce projet, ce sont 30 appartements neufs qui sont proposés. Allant du T2 au T5, ils peuvent faire office de résidence principale ou secondaire mais sont aussi adéquats pour un investissement locatif. Il est pertinent de noter qu'ils sont éligibles au dispositif Pinel.




