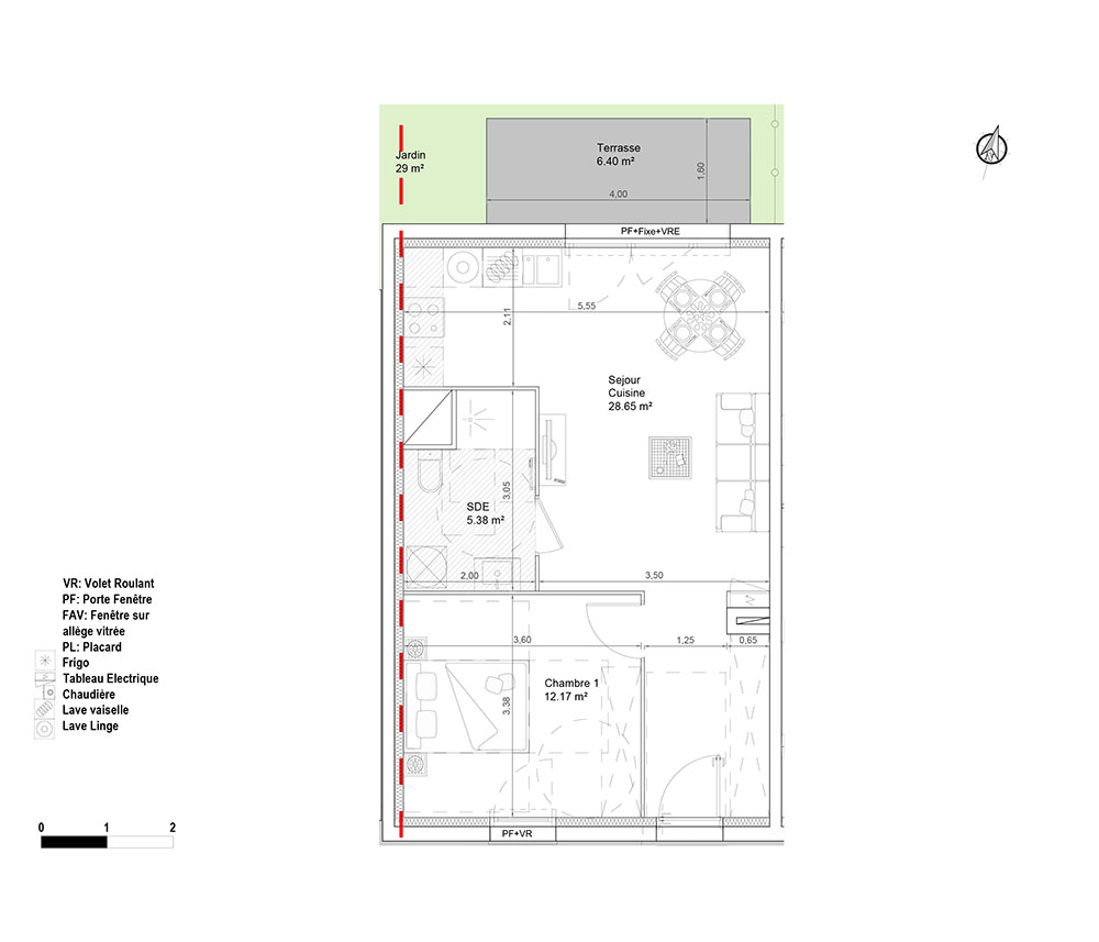
Appartement T2 n°1004 à Limoges (87000)
Prix : nous consulter
Le Clos Des Palmiers à Limoges
À noter
- Limoges
- Livraison 2ème trimestre 2027
- Résidence principale/secondaire
- Investissement locatif
- Votre suivi personnalisé Peterson.fr
- Garanti prix direct promoteur
Prestations et équipements
À propos du programme
Nouvelle résidence pour vivre ou investir à Limoges.A 5 minutes du centre-ville de Limoges, découvrez 26 appartements du 2 au 5 pièces à partir de 174 500 euros (46,02m - 6,4m terrasse - 24m jardin - RDC) au sein de la résidence Le Clos des Palmiers. Logements traversants, donc très lumineux. Chacun est prolongé d'un extérieur: Jardin et terrasse en rez-de-chaussée et balcon à l'étage. Nous vous proposons nos appartements neufs, pensés aussi bien pour les jeunes actifs que pour les jeunes retraités et les familles. En zone B1, vous profitez du dispositif Pinel+ pour investir à Limoges. DPE A.
Limoges
En travaux

Accédez à notre page dédiée au programme "Le Clos Des Palmiers" pour tout savoir sur la résidence, ses prestations et son quartier.