Appartement T1 n°01A304 à Cébazat (63118)
Prix : nous consulter
Alchimie à Cébazat
Appartement
T1 / F1 / 1 pièce
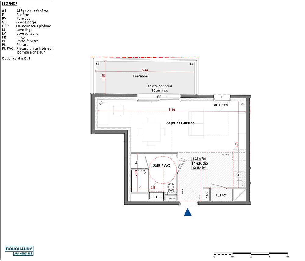
35,43 m² habitables
3ème étage
Nord
0 chambre
Terrasse 10 m²
À noter
- Cébazat
- Livraison 1er trimestre 2028
- Résidence principale/secondaire
- Investissement locatif
- Votre suivi personnalisé Peterson.fr
- Garanti prix direct promoteur
Prestations et équipements
À propos du programme
.
Cébazat
En travaux
Livraison 1er trimestre 2028

Accédez à notre page dédiée au programme "Alchimie" pour tout savoir sur la résidence, ses prestations et son quartier.
Autres biens disponibles
Une idée du nouveau projet immobilier « Alchimie »
Cébazat abrite le programme immobilier neuf « Alchimie ». On y trouve 59 appartements neufs. Allant du T1 au T4, ils peuvent aussi bien satisfaire les personnes envisageant un investissement locatif que celles qui cherchent une résidence principale ou secondaire. Notez qu'ils seront livrés au premier trimestre 2027 et qu'ils sont éligibles au dispositif de droit commun.
N° de lot
Surface
Commodités
Étage
Exposition
N° de lot
Surface
Commodités
Étage
Exposition
N° de lot
Surface
Commodités
Étage
Exposition
Lot n°01A20201A202
68 m²
Parking, Terrasse / Balcon
Étage 2
Exposition : Sud-ouestSud-ouest
N° de lot
Surface
Commodités
Étage
Exposition
Lot n°01B20201B202
88 m²
Parking, Terrasse / Balcon
Étage 2
Exposition : Sud-ouestSud-ouest
Lot n°01B00501B005
88 m²
Parking, Jardin, Terrasse / Balcon
RDC
Exposition : Sud-ouestSud-ouest
