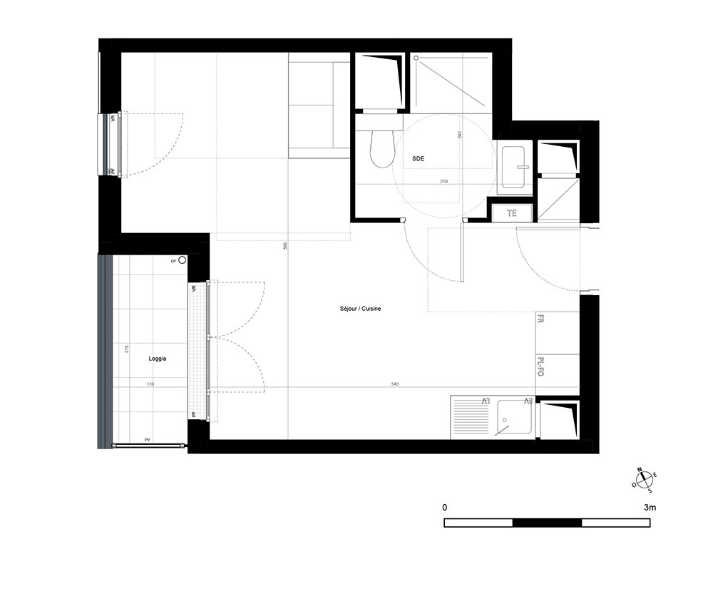
Appartement T1 n°A404 à Bagnolet (93170)
Prix : nous consulter
New Age à Bagnolet
À noter
- Bagnolet
- Livraison 4ème trimestre 2026
- Résidence principale/secondaire
- Investissement locatif
- Votre suivi personnalisé Peterson.fr
- Garanti prix direct promoteur
À propos du programme
Idéalement située à seulement 7 minutes à pied du métro "Gallieni" ligne 3 et à quelques minutes de Paris, "NEW AGE" dévoile son architecture audacieuse et élégante qui attire immédiatement le regard.
Ouverte sur un coeur d'îlot arboré ou la nature reprend ses droits, la résidence propose des appartements déclinés du studio au 5 pièces, pensés pour s'adapter à tous les styles de vie. Tous les logements s'ouvrent sur des espaces extérieurs pour profiter des beaux jours tout au long de l'année : balcon, terrasse plein-ciel en attique ou encore jardin privatif . Au rez-de-chaussée, des appartements d'exception avec double hauteur aménageable offrent la possibilité de créer des mezzanines, à vivre en version loft.
Bagnolet
En travaux

Accédez à notre page dédiée au programme "New Age" pour tout savoir sur la résidence, ses prestations et son quartier.
Autres biens disponibles
Investissez malin !
Ce programme peut bénéficier de nombreux avantages financiers adaptés à votre projet immobilier neuf :
Je recherche un bien pour...

