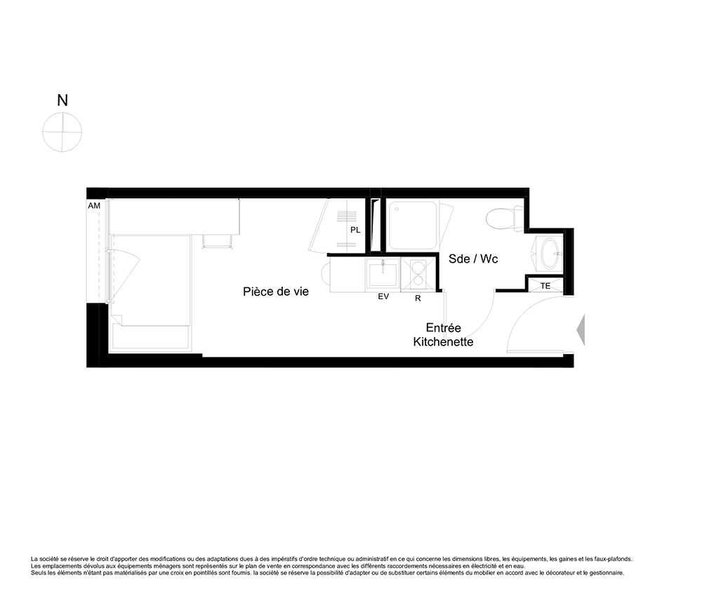
Appartement T1 n°A212 à La Rochelle (70120)
Prix : nous consulter
Dock 54 à La Rochelle
À noter
- La Rochelle
- Livraison 1er trimestre 2026
- Investissement locatif
- Votre suivi personnalisé Peterson.fr
- Garanti prix direct promoteur
Ce programme propose des biens éligibles aux dispositifs de défiscalisation suivant :
À propos du programme
Située aux abords du port de plaisance de La Rochelle, la résidence Dock 54 propose un nouveau lieu de vie innovant et convivial. Avec son architecture moderne, tout en transparence, la résidence se compose de 181 lots d'une pièce à la collocation de 5 personnes. Elle offre des espaces communs chaleureux, aux inspirations locales et qui font référence à la douceur de vivre de la ville. Entre rayures, couleurs pastel, esprit guinguette de plage et cabane de pêcheur, la résidence affirme son identité rocheloise. En plus des espaces communs traditionnels (espaces de détente, coworking, gaming, etc.), Dock 54 se pare d’un rooftop avec piscine, salle de fitness et sauna. Enfin, la résidence accueillera un restaurant et un lieu de coworking privatifs....

Accédez à notre page dédiée au programme "Dock 54" pour tout savoir sur la résidence, ses prestations et son quartier.

