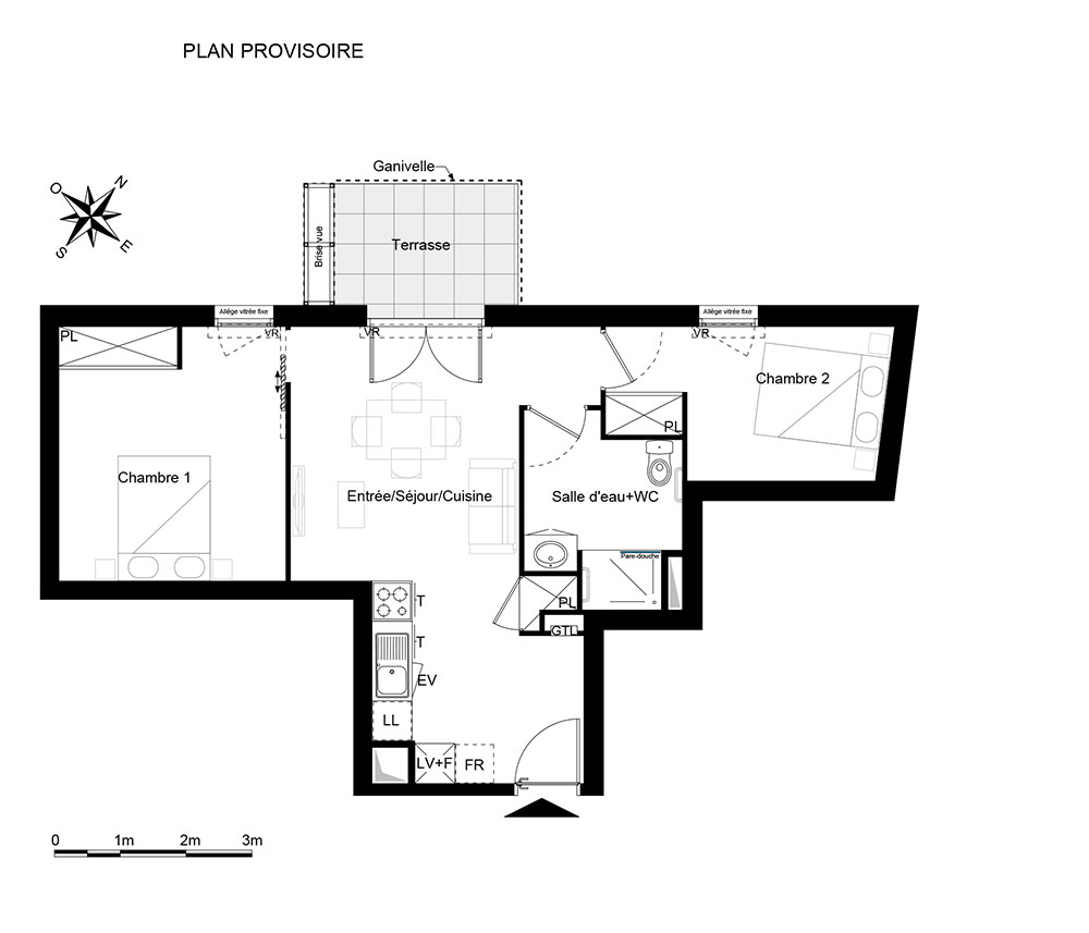
Appartement T3 n°A004 à Brive-la-Gaillarde (19100)
Prix : nous consulter
Serenly Brive-la-gaillarde à Brive-la-Gaillarde
À noter
- Brive-la-Gaillarde
- Livraison 1er trimestre 2026
- Investissement locatif
- Votre suivi personnalisé Peterson.fr
- Garanti prix direct promoteur
Ce programme propose des biens éligibles aux dispositifs de défiscalisation suivant :
Prestations et équipements
À propos du programme
Avec son architecture moderne et élégante, la résidence Serenly Brive-la-Gaillarde s'intègre parfaitement dans ce quartier en pleine mutation. Composée de 93 appartements dont 7 T1 Bis, 84 T2 et 2 T3, répartis dans 1 bâtiment en forme de T et en R+4, elle offre de beaux espaces de vie pratiques et conviviaux (salon, salle de fitness, cuisine collaborative...). À l'extérieur, les résidents pourront profiter d'espaces verts communs aménagés, d'une terrasse et d'un terrain de pétanque, pour favoriser les activités et le lien social. Un grand parking aérien, un local vélos et un double accès dans cette résidence sécurisée faciliteront la vie quotidienne des habitants....

Accédez à notre page dédiée au programme "Serenly Brive-la-gaillarde" pour tout savoir sur la résidence, ses prestations et son quartier.
