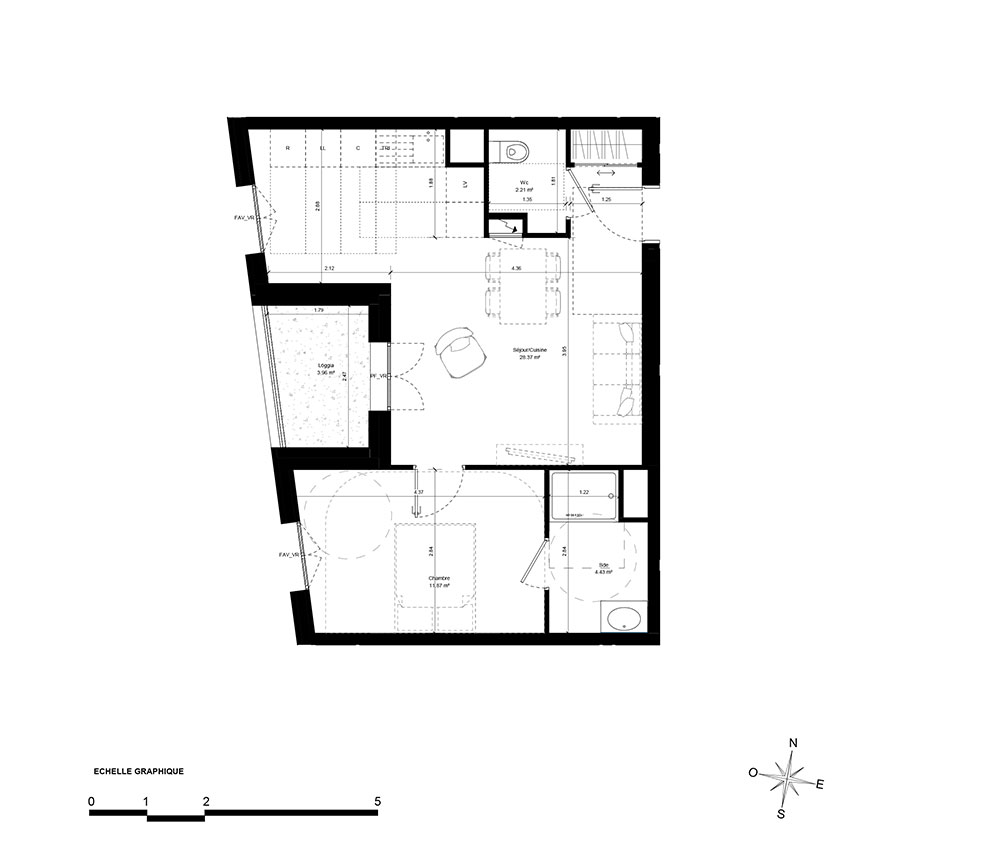
Appartement T2 n°LB102 à Aubervilliers (93300)
Prix : nous consulter
Passerelle Du Chemin Vert à Aubervilliers
À noter
- Aubervilliers
- Livraison 3ème trimestre 2027
- Résidence principale/secondaire
- Investissement locatif
- Votre suivi personnalisé Peterson.fr
- Garanti prix direct promoteur
À propos du programme
PROCHAINEMENT A AUBERVILLIERS (93) – Rue du Port, à 200m du parc Eli Lotar, découvrez notre nouvelle résidence "PASSERELLE DU CHEMIN VERT" articulée autour d’un cœur d’îlot paysager. Vous serez séduits par son architecture contemporaine et un large choix d’appartements du studio au 5 pièces prolongés pour la plupart d’un balcon, d’une loggia ou d’une terrasse. Des terrasses partagées vous permettront de profiter pleinement des beaux jours avec vos voisins. A seulement 800 mètres, la station Mairie d’Aubervilliers (métro ligne 12) vous permettra de rejoindre la gare Saint-Lazare en 20 minutes et la gare Montparnasse en 32 minutes. A horizon 2030 dans le cadre du Grand Paris Express, cette station sera desservie par la ligne 15. A 1 km, la gare RER B "La Plaine Stade de France" vous amènera à la gare du Nord en moins de 10 minutes. A moins de 10 min à pied, les commerces de proximité et les équipements scolaires et sportifs faciliteront votre quotidien. Possibilité de bénéficier de la TVA réduite à 5,5 % au lieu de 20 % sous conditions (disponibles auprès de nos conseillers). Contactez-nous dès à présent pour obtenir plus d’informations sur cette résidence !
Aubervilliers
En travaux

Accédez à notre page dédiée au programme "Passerelle Du Chemin Vert" pour tout savoir sur la résidence, ses prestations et son quartier.
Autres biens disponibles
Investissez malin !
Ce programme peut bénéficier de nombreux avantages financiers adaptés à votre projet immobilier neuf :
Je recherche un bien pour...





