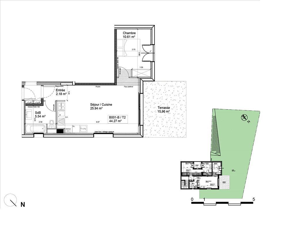
Appartement T2 n°B001B à Antony (92160)
Prix : nous consulter
La Marquette à Antony
À noter
- Antony
- 4ème trimestre 2025
- Résidence principale/secondaire
- Investissement locatif
- Votre suivi personnalisé Peterson.fr
- Garanti prix direct promoteur
Prestations et équipements
À propos du programme
Située au sud de Paris, à seulement 8 km de la Porte d’Orléans, Antony dispose d’un cadre de vie exceptionnel, incarnant dynamisme économique et qualité de vie de la Province. La résidence La Marquette est située dans un quartier pavillonnaire. Cette situation des plus commodes permet de bénéficier des équipements de loisirs dont dispose la ville : médiathèque, espaces verts, cinéma, conservatoire, salle de sport, etc.
Antony
Livré

Accédez à notre page dédiée au programme "La Marquette" pour tout savoir sur la résidence, ses prestations et son quartier.
Autres biens disponibles
Introduction au programme neuf « La Marquette »
Le projet immobilier « La Marquette », qui propose des biens neufs, est installé à Antony. Ce projet, c'est 5 appartements neufs. Ce programme vous offre des logements de type T4. Il est pertinent de noter qu'ils sont éligibles au dispositif Pinel.


