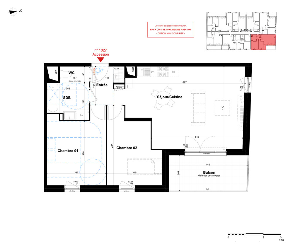
Appartement T3 n°1027 à Bourgoin-Jallieu (38300)
Prix : nous consulter
Le Lys à Bourgoin-Jallieu
Appartement
T3 / F3 / 3 pièces
63,83 m² habitables
2ème étage
Est
2 chambres
Balcon 9 m²
À noter
- Bourgoin-Jallieu
- Livraison 4ème trimestre 2027
- Résidence principale/secondaire
- Investissement locatif
- Votre suivi personnalisé Peterson.fr
- Garanti prix direct promoteur
Prestations et équipements
À propos du programme
Découvrez notre nouvelle résidence neuve Nexity située à proximité immédiate du centre-ville de Bourgoin : Le Lys. Elle vous propose un emplacement de choix, proche du coeur de ville, permettant un accès facile aux commerces, écoles et autres commodités du quotidien. L'accès à la gare à moins de 10 min à pied vous permettra de rejoindre directement Lyon en train en 25 min. Découvrez une sélection d'appartements neufs du 2 au 4 pièces. Certification énergétique RE2020.
Bourgoin-Jallieu
En travaux
Livraison 4ème trimestre 2027

Accédez à notre page dédiée au programme "Le Lys" pour tout savoir sur la résidence, ses prestations et son quartier.
Autres biens disponibles
Le programme neuf Le Lys, situé dans la ville de Bourgoin-Jallieu, est composé de 54 lots de type appartement et stationnement répartis en T2, T3, T4, T5, livrés au 4ème trimestre 2027 et destinés aux différents projets : résidence principale, résidence secondaire et investissement locatif. Ce programme neuf est éligible aux dispositifs LMNP Hors Bail commercial et Droit Commun pour habiter ou investir à Bourgoin-Jallieu.
N° de lot
Surface
Commodités
Étage
Exposition
N° de lot
Surface
Commodités
Étage
Exposition
N° de lot
Surface
Commodités
Étage
Exposition
N° de lot
Surface
Commodités
Étage
Exposition