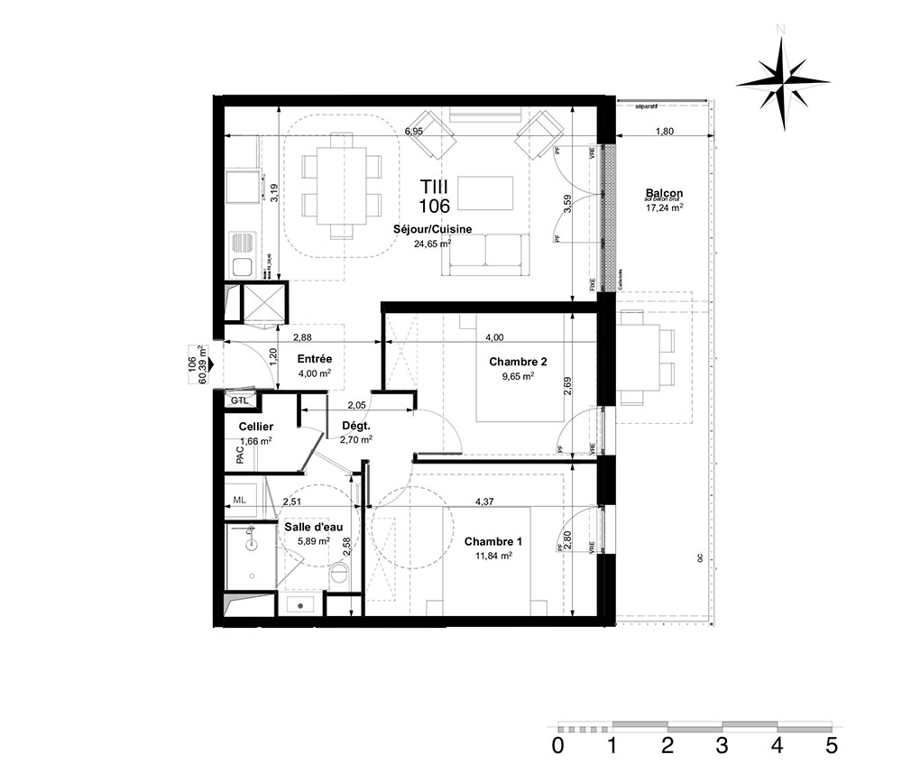
Appartement T3 n°01A106 à Vouvray (37210)
Prix : nous consulter
Carre Des Halles à Vouvray
À noter
- Vouvray
- Livraison 4ème trimestre 2027
- Résidence principale/secondaire
- Investissement locatif
- Votre suivi personnalisé Peterson.fr
- Garanti prix direct promoteur
Prestations et équipements
À propos du programme
Vouvray
En travaux

Accédez à notre page dédiée au programme "Carre Des Halles" pour tout savoir sur la résidence, ses prestations et son quartier.
Autres biens disponibles
Nouveauté sur le marché de l'immobilier : en apprendre plus sur le projet « Carre Des Halles »
« Carre Des Halles » est un programme immobilier dans le neuf situé à Vouvray. Ce nouveau programme comprend, sur un total de 28 appartements neufs, 19 biens encore disponibles. De type T1, T2, T3 et T4, ils répondront aussi bien aux besoins d'une recherche en résidence principale ou secondaire ainsi qu'à ceux d'un investissement locatif. Remarquez que les logements sont éligibles aux dispositifs LMNP (loueur en meublé non professionnel) hors bail commercial et de droit commun et seront prêts à être livrés au 3e trimestre 2027.


