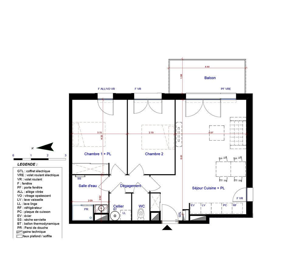
Appartement T3 n°3206 à Parempuyre (33290)
Prix : nous consulter
Rivage à Parempuyre
À noter
- Parempuyre
- Livraison 4ème trimestre 2027
- Résidence principale/secondaire
- Investissement locatif
- Votre suivi personnalisé Peterson.fr
- Garanti prix direct promoteur
Prestations et équipements
À propos du programme
Découvrez votre future adresse à Parempuyre, commune verte entre Bordeaux (centre à 15 km) et la presqu'île d'Ambes. Idéalement située dans un quartier pavillonnaire calme proche du lac, des commerces et services et bien desservi (gare TER), cette résidence allie confort de vie et proximité des commodités. Dans ce cadre de vie privilégié, "Rivage" propose 23 appartements neufs seulement, du 2 au 4 pièces, conçus pour offrir confort et fonctionnalité. Au calme et bien orientés, ils s'ouvrent sur un grand jardin privatif ou un large balcon.
Cette résidence neuve à Parempuyre, intimiste et sécurisée, dispose d'un ascenseur et d'un local vélo. Son architecture moderne et sobre s'intègre harmonieusement à son environnement résidentiel.
Soyez parmi les premiers à choisir votre appartement neuf à Parempuyre !
Parempuyre
En travaux

Accédez à notre page dédiée au programme "Rivage" pour tout savoir sur la résidence, ses prestations et son quartier.



