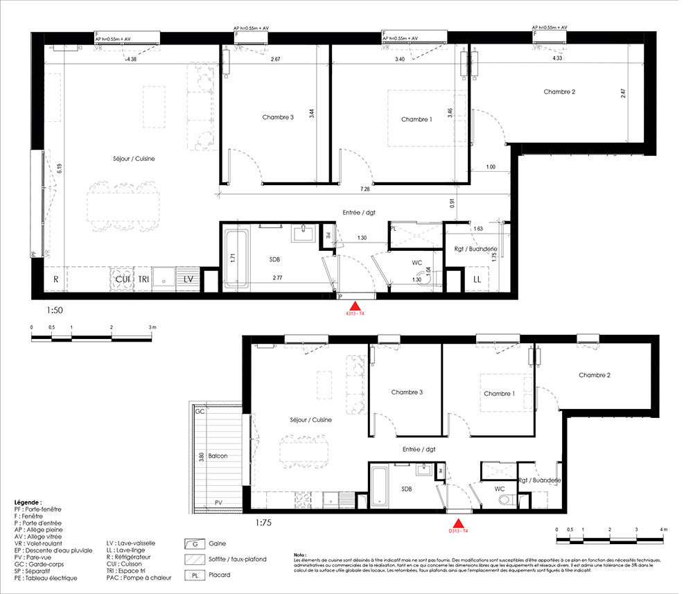
Appartement T4 n°4313 à Bondoufle (91070)
Prix : nous consulter
Carré Noyer - Appartements à Bondoufle
À noter
- Bondoufle
- Livraison 4ème trimestre 2027
- Résidence principale/secondaire
- Investissement locatif
- Votre suivi personnalisé Peterson.fr
- Garanti prix direct promoteur
Prestations et équipements
À propos du programme
Un projet dans la Zac "Le Grand Parc", aux fortes ambitions environnementales : une co-promotion avec GRAND PARIS AMÉNAGEMENT, proposant des appartements neufs au sein d'un vaste écrin paysager. Bondoufle, prisée pour son cadre de vie agréable et ses espaces verts, bénéficie d'un dynamisme économique attractif. Le quartier bénéficie d'infrastructures et d'équipements tels qu'une école primaire, une médiathèque, des commerces de proximité, des équipements sportifs, un parc de plus de 12 hectares accessibles à pied depuis cette nouvelle résidence,... Le secteur résidentiel du Grand Parc, ainsi transformé, est aujourd'hui l'un des plus animés de la ville de Bondoufle. Appartements neufs du 2 au 4P pièces dans un bâtiment au mode constructif hybride bois/béton bas carbone, aux façades contemporaines et écologiques, tous dotés d'un espace extérieur privatif (jardin, balcon ou loggia). Une grande courée paysagère structure l'ensemble de la résidence, créant un espace de vie partagé qui favorise les échanges et la convivialité entre résidents.
Bondoufle
En travaux

Accédez à notre page dédiée au programme "Carré Noyer - Appartements" pour tout savoir sur la résidence, ses prestations et son quartier.
Autres biens disponibles
« Carré Noyer - Appartements », le nouveau programme immobilier
Bondoufle abrite le projet immobilier neuf « Carré Noyer - Appartements ». 72 maisons et appartements neufs sont inclus dans ce programme. En ce moment, 72 d'entre eux sont encore disponibles. Ils sont de type T2, T3, T4 et T5 et peuvent faire office de résidence principale ou secondaire et d'investissement locatif. Remarquez dès à présent qu'ils sont éligibles au dispositif de droit commun.

