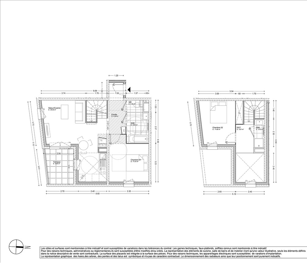
Appartement T3 n°1123 à Cournon-d'Auvergne (63800)
Prix : nous consulter
Premières Loges à Cournon-d'Auvergne
À noter
- Cournon-d'Auvergne
- Livraison 4ème trimestre 2027
- Résidence principale/secondaire
- Investissement locatif
- Votre suivi personnalisé Peterson.fr
- Garanti prix direct promoteur
Prestations et équipements
À propos du programme
Découvrez PREMIERES LOGES, la nouvelle résidence signée Nexity, en plein coeur de Cournon d'Auvergne. Soyez aux Premières Loges de la nouvelle place de la République, un projet qui apporte à la commune un véritable renouveau ! Grâce à la localisation de cette nouvelle résidence, profitez d'une proximité directe avec des établissements scolaires, des entreprises et des commerces de proximité. Rejoignez le centre-ville de Clermont-Ferrand en 15 minutes en voiture ou en bus grâce à la ligne directe INSPI'R située au pied de la résidence. Nexity vous propose des appartements du studio au 5 pièces tous prolongés par de vastes extérieurs : balcons, loggias ou terrasses généreuses. Une place de stationnement est disponible pour chaque logement. La résidence se démarque avec son architecture semblable à des maisons de ville et son esprit "village".
Cournon-d'Auvergne
En travaux

Accédez à notre page dédiée au programme "Premières Loges" pour tout savoir sur la résidence, ses prestations et son quartier.




