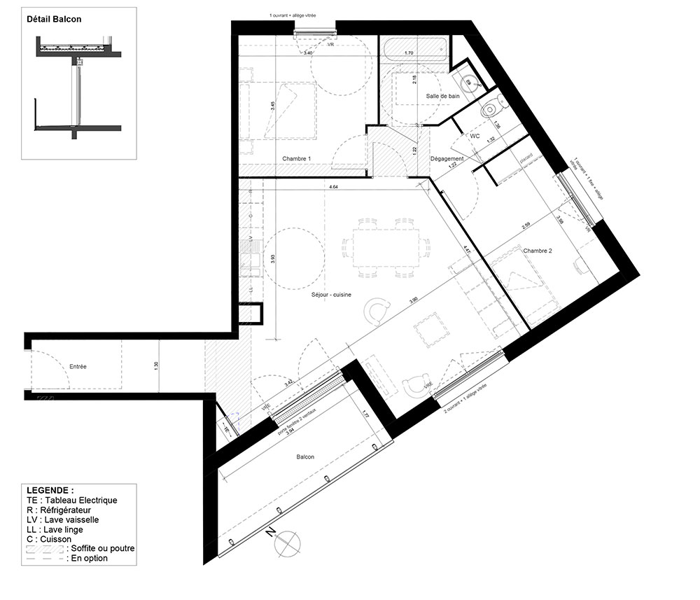
Appartement T3 n°3308 à Mont-Saint-Aignan (76130)
Prix : nous consulter
Résidence Saint-exupéry à Mont-Saint-Aignan
À noter
- Mont-Saint-Aignan
- Livraison 1er trimestre 2028
- Résidence principale/secondaire
- Investissement locatif
- Votre suivi personnalisé Peterson.fr
- Garanti prix direct promoteur
Prestations et équipements
À propos du programme
Mont-Saint-Aignan, un emplacement privilégié sur les hauteurs de Rouen ! À seulement 10 mn du centre-ville de Rouen, découvrez notre résidence d'exception dans une commune résidentielle prisée alliant dynamisme et douceur de vivre, réputée pour son environnement verdoyant et sa qualité de vie.Découvrez la Résidence Saint-Exupéry, idéalement située pour simplifier votre quotidien : arrêt de bus au pied de la résidence, à 2 pas de la Place Colbert où vous trouverez tous les commerces et services, ainsi que du pôle universitaire. La résidence propose 36 appartements neufs, allant du 2 au 4 pièces, tous conçus pour offrir des espaces spacieux et lumineux. Chaque logement est prolongé d'un extérieur privatif : balcon, terrasse ou terrasse en attique. La résidence offre des prestations de qualités : ascenseur, visiophone, hall d'entrée sécurisé, parkings privatifs... Que vous soyez jeune actif, une famille ou retraité, vous trouverez l'appartement qui correspond à vos besoins et attentes. Un cadre de vie idéal et parfait, pour y vivre ou investir. Renseignez-vous dès maintenant et soyez les premiers à choisir votre appartement !
Mont-Saint-Aignan
En travaux

Accédez à notre page dédiée au programme "Résidence Saint-exupéry" pour tout savoir sur la résidence, ses prestations et son quartier.



