Appartement T2 n°105 à Beauchamp (95250)
Prix : nous consulter
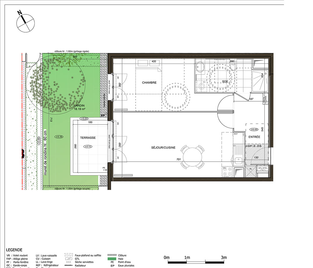
Villa Mansart à Beauchamp
À noter
- Beauchamp
- Livraison 4ème trimestre 2027
- Résidence principale/secondaire
- Investissement locatif
- Votre suivi personnalisé Peterson.fr
- Garanti prix direct promoteur
Prestations et équipements
À propos du programme
Découvrez les appartements du studio au 4 pièces prolongés par des balcons, loggias, ou terrasses généreuses pour les derniers étages, ainsi que par des jardins privatifs pour la plupart des appartements en rez-de-chaussée. Dans un environnement résidentiel très prisé aux allures de village, vous profiterez de la proximité immédiate des commerces du centre-ville, des équipements scolaires, publics et sportifs. A seulement 350 mètres, la gare de MONTIGNY-BEAUCHAMP vous permettra de rejoindre Paris-Gare du Nord en 27 minutes (Ligne H) et Paris-Porte de Clichy en 28 minutes (RER C). Pour toutes informations complémentaires, prenez contact avec nous !
Beauchamp
En travaux

Accédez à notre page dédiée au programme "Villa Mansart" pour tout savoir sur la résidence, ses prestations et son quartier.


