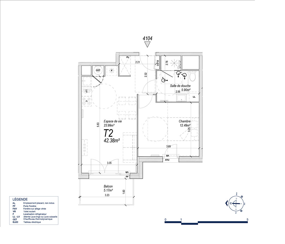
Appartement T2 n°4104 à Criel-sur-Mer (76910)
Prix : nous consulter
Villas Alba à Criel-sur-Mer
À noter
- Criel-sur-Mer
- Livraison 4ème trimestre 2028
- Résidence principale/secondaire
- Investissement locatif
- Votre suivi personnalisé Peterson.fr
- Garanti prix direct promoteur
Prestations et équipements
À propos du programme
A proximité de la plage et du centre-ville de Criel-sur-Mer, découvrez « Villas Alba », votre nouvelle résidence à l'architecture typiquement normande. Ici, choisissez votre appartement neuf de 2 ou 3 pièces avec une vue imprenable sur la mer. Tous les logements ont été pensés pour maximiser la lumière naturelle grâce à de grandes ouvertures et de généreux espaces intérieurs comme extérieurs. Faites le choix d'y séjourner à l'année, le temps d'un week-end prolongé ou de vacances en profitant d'un environnement paisible de bord de mer. Villas Alba conjugue confort, qualité de vie et emplacement privilégié. Inscrivez vous dès maintenant pour sélectionner votre nouvelle
Criel-sur-Mer
En travaux

Accédez à notre page dédiée au programme "Villas Alba" pour tout savoir sur la résidence, ses prestations et son quartier.
Autres biens disponibles
Explorez le nouveau programme immobilier « Villas Alba »
« Villas Alba » est un programme immobilier neuf situé à Criel-sur-Mer. Ce projet est constitué de 23 appartements neufs dont 16 qui sont toujours disponibles. De type T2 et T3, ils s'adressent plutôt aux personnes intéressées par l'investissement locatif mais conviennent également pour investir dans une résidence principale ou secondaire. Notez que les biens sont éligibles au dispositif de droit commun et seront prêts à être livrés au 1er trimestre 2028.


