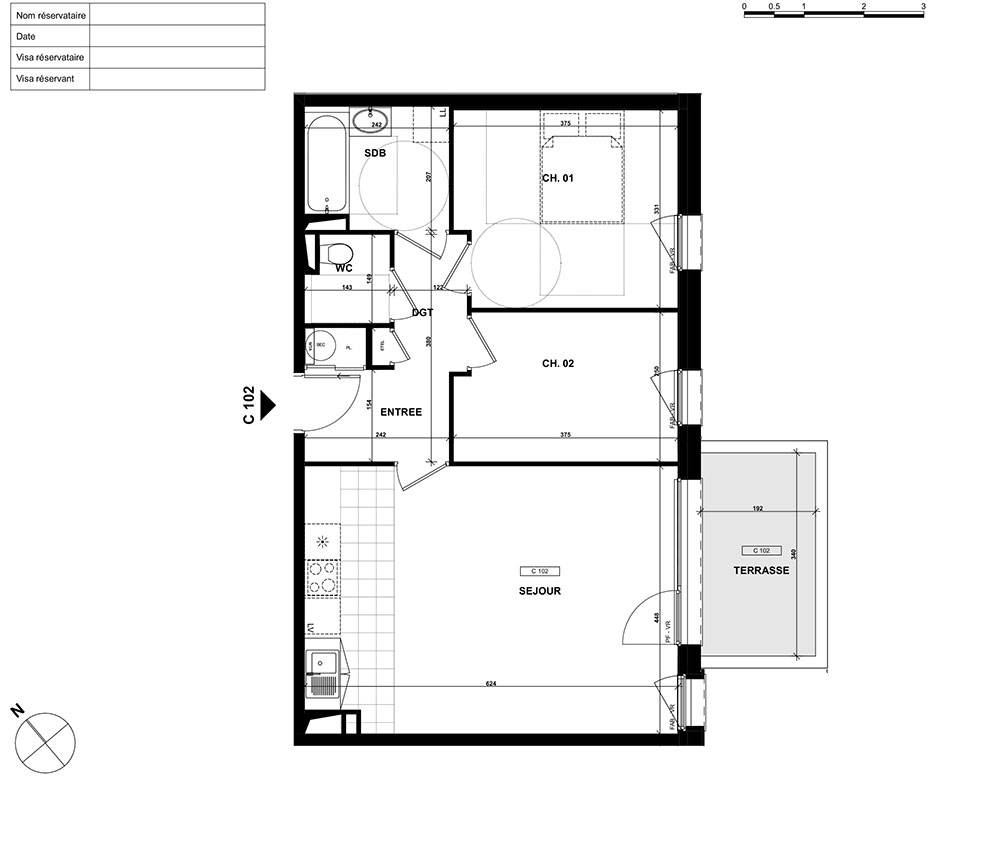
Appartement T3 n°C102 à Lannion (22300)
Prix : nous consulter
Le Clos Des Capucins à Lannion
À noter
- Lannion
- Livraison 4ème trimestre 2027
- Résidence principale/secondaire
- Investissement locatif
- Votre suivi personnalisé Peterson.fr
- Garanti prix direct promoteur
Prestations et équipements
À propos du programme
Des appartements du studio au T5, avec balcon, terrasse, loggia ou jardin, pour habiter ou investir dans un cadre de vie privilégié. Votre nouvelle vie en plein coeur de Lannion : sérénité, confort et nature au quotidien En plein centre-ville, à seulement 250 mètres de la Place du Général Leclerc et à deux pas du marché le plus renommé du département, Promoty vous invite à découvrir un cadre de vie unique, pensé pour votre bien-être et votre tranquillité. Nichée dans un environnement calme et verdoyant, notre résidence intimiste de 51 appartements répartis sur 3 bâtiments s'intègre avec élégance au charme historique du centre-ville. Son architecture contemporaine, sobre et harmonieuse, respecte l'esprit du lieu, à proximité de la Chapelle des Ursulines, tout en proposant des logements modernes, faciles à vivre et largement ouverts sur l'extérieur. Chaque appartement a été conçu pour votre confort au quotidien : • De grands espaces de vie lumineux, grâce à de larges ouvertures, • De généreux extérieurs - terrasses, balcons, jardins privatifs ou loggias - pour profiter pleinement de la nature en coeur de ville, • Un magnifique jardin paysager en coeur d'îlot, véritable havre de paix où il fait bon se détendre. La résidence est entièrement accessible aux personnes à mobilité réduite (PMR) et répond aux exigeantes normes environnementales RE2020, vous garantissant : • un confort thermique et acoustique optimal, • une parfaite maîtrise de vos consommations d'énergie. Pour plus de praticité, des parkings privatifs et des caves viennent compléter votre lieu de vie. Avec cette nouvelle résidence, vous profitez pleinement des atouts du centre-ville - commerces, services, marché, animations - tout en bénéficiant d'un environnement sécurisé, convivial et apaisant. Faites le choix d'un quotidien serein et confortable, au coeur de Lannion et prenez rapidement contact avec l'un de nos conseillers !
Lannion
En travaux

Accédez à notre page dédiée au programme "Le Clos Des Capucins" pour tout savoir sur la résidence, ses prestations et son quartier.
Autres biens disponibles
« Le Clos Des Capucins » : présentation du nouveau programme immobilier
Le programme de logements neufs « Le Clos Des Capucins » est un projet situé à Lannion. Ce programme représente 41 appartements neufs. À l'heure actuelle, 28 d'entre eux sont toujours disponibles. Ils sont de type Studio, T1, T2, T3, T4 et T5 et pourront être occupés au titre de résidence principale ou secondaire mais se prêtent également à l'investissement locatif. Notez que les logements sont éligibles au dispositif de droit commun et seront mis à disposition à la fin de l'année 2027.