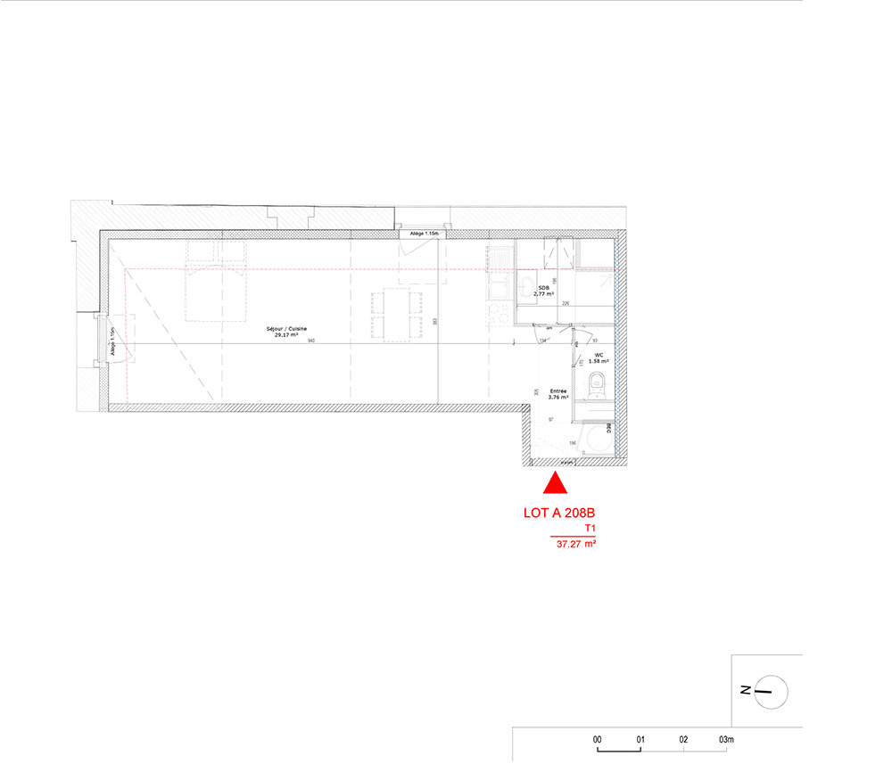
Appartement T1 n°A208B à Douai (59500)
Prix : nous consulter
Hotel Dieu à Douai
À noter
- Douai
- Livraison 4ème trimestre 2026
- Investissement locatif
- Votre suivi personnalisé Peterson.fr
- Garanti prix direct promoteur
Prestations et équipements
À propos du programme
L’Hôtel-Dieu est un édifice incontournable du paysage douaisien depuis de le XVIIIe. Impressionnant par sa cour pavée et ses majestueuses façades classées, l’Hôtel-Dieu est le témoin de la grandeur de l’architecture classique militaire.
Sous la supervision des équipes d’Histoire & Patrimoine, l’Hôpital Militaire de l’Hôtel-Dieu va retrouver toute sa splendeur d’antan. Le projet de réhabilitation permettra la création de 28 logements déclinés du studio au quatre pièces duplex.
Situé à seulement 400m du centre commerçant et de la gare, la bâtisse offre une véritable parenthèse de sérénité en coeur de ville.
Douai
En travaux

Accédez à notre page dédiée au programme "Hotel Dieu" pour tout savoir sur la résidence, ses prestations et son quartier.
Autres biens disponibles
« Hotel Dieu » : le nouveau programme immobilier se dévoile
Le programme de logements neuf « Hotel Dieu » est un projet à Douai. Ce nouveau programme comporte 25 appartements neufs. Ils sont de type T1, T1 bis, T2, T2 bis, T3 et T4 et peuvent faire office d'investissement locatif. Notez qu'ils seront livrés fin décembre 2026 et qu'ils sont éligibles au dispositif de monument historique.


