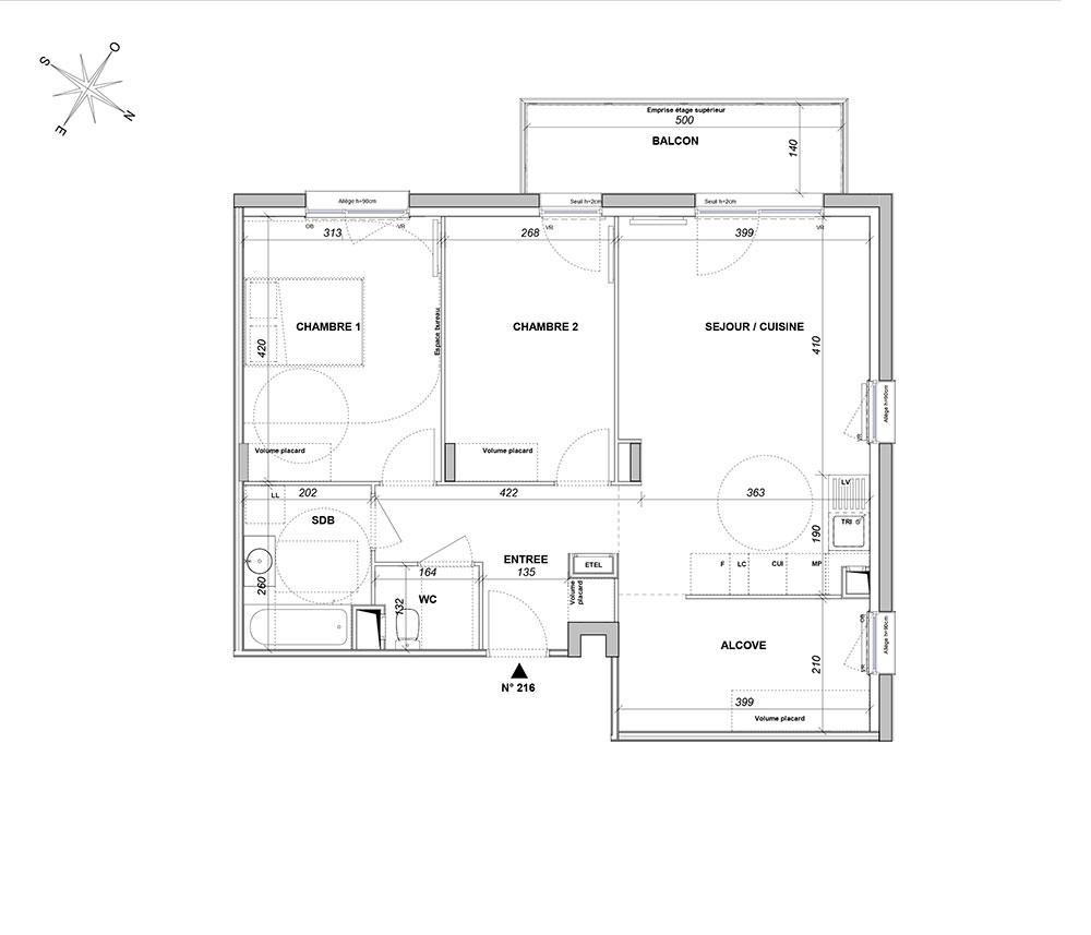
Appartement T3 n°216 à Saverne (67700)
Prix : nous consulter
Le Clos du Château à Saverne
À noter
- Saverne
- Livraison 3ème trimestre 2027
- Résidence principale/secondaire
- Investissement locatif
- Votre suivi personnalisé Peterson.fr
- Garanti prix direct promoteur
Prestations et équipements
À propos du programme
Découvrez une résidence neuve intimiste à Saverne, et devenez propriétaire d'un bel appartement du 2 au 4 pièces au cœur de l'Alsace. Idéalement située à proximité de la gare, des écoles et des commerces, cette résidence labellisée RE 2020 seuil 2025 conjugue confort moderne et respect de l'environnement. Architecture contemporaine et d’inspiration régionale, espaces extérieurs privatifs, prestations de qualité... Tout a été pensé pour vous offrir le meilleur de cette commune familiale connue pour son cadre de vie privilégié. Éligibles au dispositif Cogedim Access, les appartements vous permettent de devenir propriétaire avec un apport minimum et des mensualités équivalentes à votre loyer actuel. Plus besoin de choisir entre acheter ou préserver votre qualité de vie !
Saverne
En travaux

Accédez à notre page dédiée au programme "Le Clos du Château" pour tout savoir sur la résidence, ses prestations et son quartier.
Autres biens disponibles
Tout ce qu'il faut comprendre sur le nouveau projet immobilier « Le Clos du Château »
Le projet de logements neufs « Le Clos du Château » est un programme situé à Saverne. Ce projet dispose de 45 appartements neufs. En ce moment, 43 d'entre eux sont toujours disponibles. Allant du Studio au T4, ils s'adressent aux acheteurs intéressés par l'investissement locatif comme aux personnes en quête de leur résidence principale ou secondaire. Les biens seront livrés fin septembre 2027, au terme des travaux, et sont éligibles aux dispositifs LMNP (loueur en meublé non professionnel) hors bail commercial et de droit commun.



