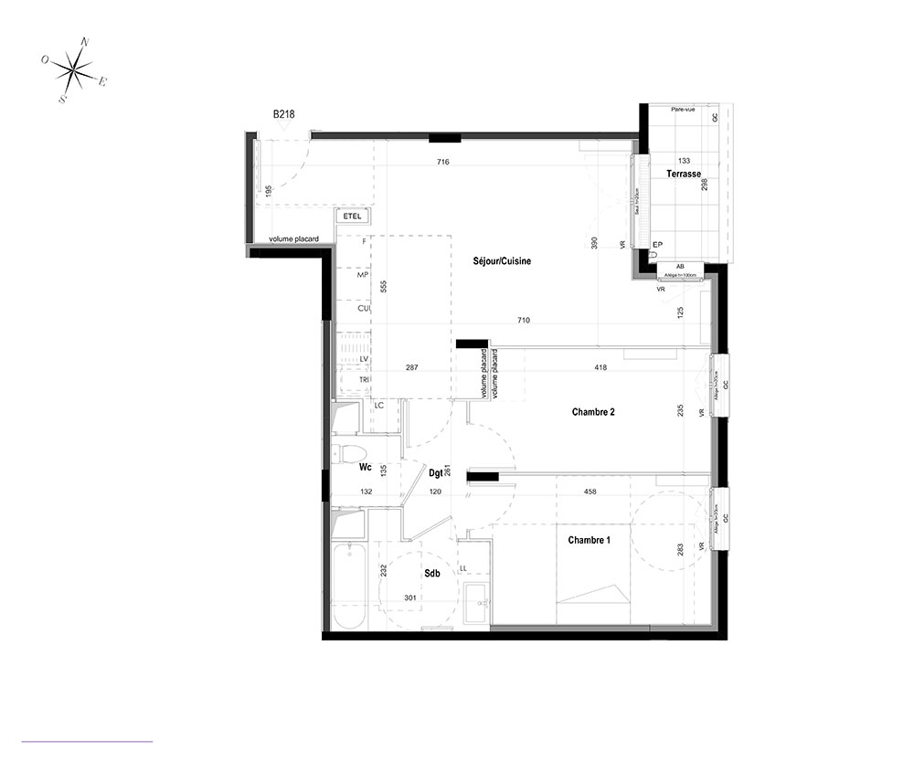
Appartement T3 n°B218 à Goussainville (95190)
Prix : nous consulter
Carré Coubertin à Goussainville
À noter
- Goussainville
- Livraison 4ème trimestre 2027
- Résidence principale/secondaire
- Investissement locatif
- Votre suivi personnalisé Peterson.fr
- Garanti prix direct promoteur
Prestations et équipements
À propos du programme
Architecture néoclassique et vastes espaces verts sont au rendez-vous au sein de cette résidence neuve, nichée au cœur du nouvel écoquartier de Goussainville, à seulement 300m de la gare RER. Découvrez de beaux appartements neufs du studio au 4 pièces, tous ouverts sur un balcon, une terrasse ou un jardin privatif. Avec ses commerces, écoles et services à proximité, l’écoquartier offre la sérénité d’une vie piétonne tout en réintroduisant un brin de nature en milieu urbain. Jardins d’enfants, potagers, espaces de compostage et pistes cyclables transforment le quotidien, faisant de cette adresse un véritable cocon de bien-être. Profitez de la TVA réduite à 5,5% pour devenir propriétaire à Goussainville, à seulement 30 min en RER de Paris.
En travaux

Accédez à notre page dédiée au programme "Carré Coubertin" pour tout savoir sur la résidence, ses prestations et son quartier.


