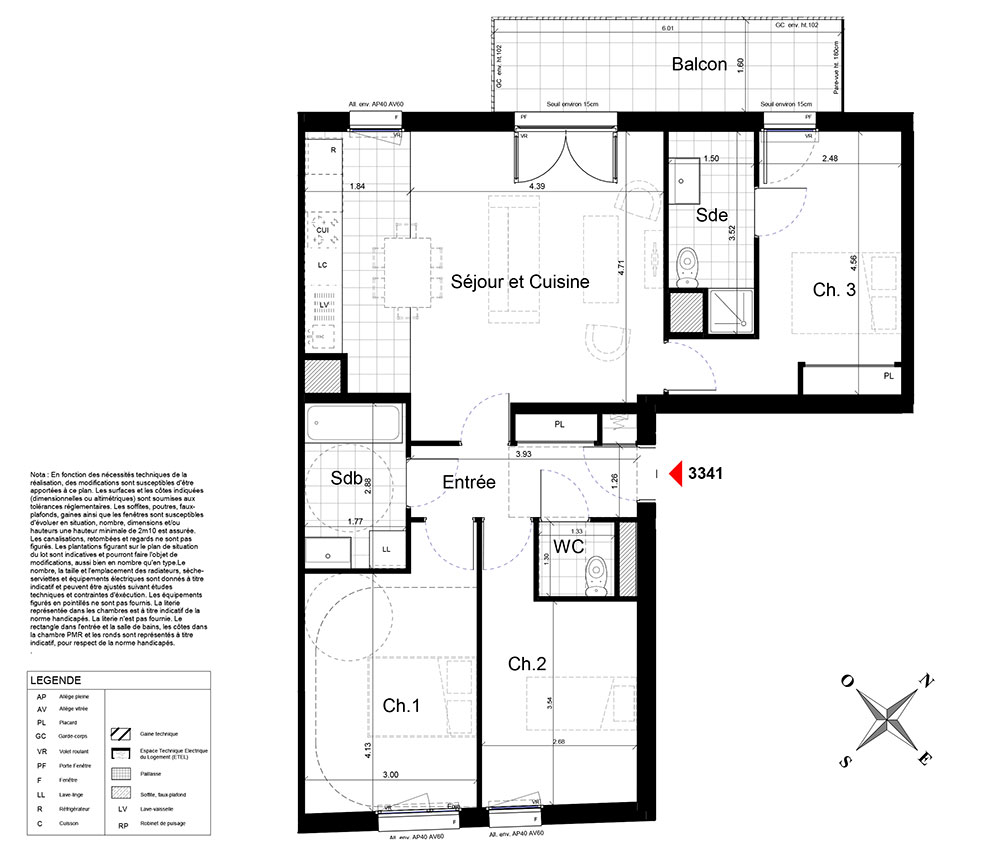
Appartement T4 n°3341 à Colombes (92700)
Prix : nous consulter
Ovation Magellan à Colombes
À noter
- Colombes
- Livraison 4ème trimestre 2027
- Résidence principale/secondaire
- Investissement locatif
- Votre suivi personnalisé Peterson.fr
- Garanti prix direct promoteur
Prestations et équipements
À propos du programme
Soyez les premiers à conquérir une nouvelle terre de valeurs à seulement 14 minutes de Paris!Vivez l'exception entre La Défense et Paris. Découvrez une nouvelle terre de valeurs au pied du transilien (ligne L vers Paris Saint-Lazare en 14 minutes) et du futur tramway T1. Un nouveau quartier aux nombreux atouts: des parcs, de nombreux commerces, des équipements scolaires (crèche/écoles...), des infrastuctures sportives (un équipement multisports, un pratice de golf), un bâtiment dédié à l'agriculture urbaine... Dans ce futur nouveau quartier emblématique de l'ouest parisien, à quelques minutes du centre-ville, votre future résidence occupe une place de choix. Au coeur d'un grand Parc paysager, derrière la serre d'agriculture urbaine, les appartements se déclinent du studio au 5 pièces duplex avec pour la plupart de magnifiques espaces extérieurs (balcons, terrasses, jardins d'hiver...) Soyez les premiers à vivre l'exception ! Pour toutes informations complémentaires, prenez contact avec nous !
Colombes
En travaux

Accédez à notre page dédiée au programme "Ovation Magellan" pour tout savoir sur la résidence, ses prestations et son quartier.


