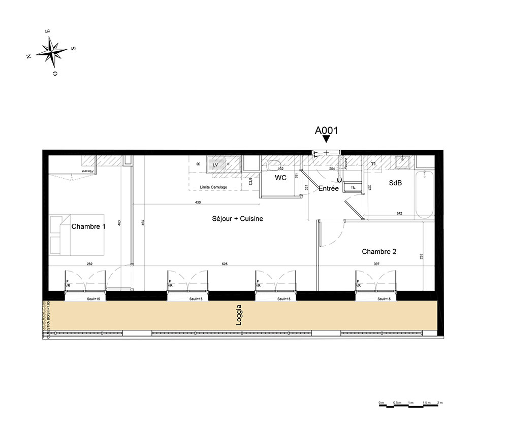
Appartement T3 n°A001 à Compiègne (60200)
Prix : nous consulter
Carre Mansart à Compiègne
À noter
- Compiègne
- Livraison 4ème trimestre 2027
- Résidence principale/secondaire
- Investissement locatif
- Votre suivi personnalisé Peterson.fr
- Garanti prix direct promoteur
Prestations et équipements
À propos du programme
Cette résidence à l’architecture élégante de style Mansart propose 47 appartements du 2 au 4 pièces, pensés pour le confort des résidents. Tous les appartements bénéficient d’un balcon ou d’une terrasse avec jardin pour profiter des beaux jours. La résidence dispose de deux halls d’entrée, chacun équipé d’un ascenseur, ainsi que d’un parking sécurisé en sous-sol. Un commerce en rez-de-chaussée viendra enrichir l’offre de proximité du quartier. « CARRE MANSART » s'inscrit dans le cadre de la Réglementation Environnementale RE2020, garantissant des normes exigeantes en matière de performance énergétique et de respect de l'environnement, pour offrir à ses habitants un cadre de vie harmonieux et durable. Fort de son savoir-faire de plus de 50 ans en immobilier résidentiel, European Homes réinvente une fois de plus la qualité de vie à Compiègne.
Compiègne
En travaux

Accédez à notre page dédiée au programme "Carre Mansart" pour tout savoir sur la résidence, ses prestations et son quartier.
Autres biens disponibles
Découvrez le programme neuf « Carre Mansart »
Le projet immobilier neuf « Carre Mansart » se situe à Compiègne. Ce projet est constitué de 46 appartements neufs dont 40 qui sont toujours disponibles. De type T2, T3 et T4, ils s'adressent plutôt aux personnes intéressées par l'investissement locatif mais conviennent également pour investir dans une résidence principale ou secondaire. Éligibles au dispositif de droit commun, les logements seront livrés fin décembre 2027.


