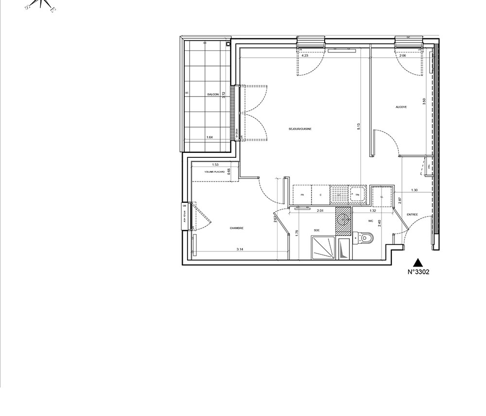
Appartement T2 n°3302 à Pontoise (95300)
Prix : nous consulter
Allure à Pontoise
À noter
- Pontoise
- Livraison 4ème trimestre 2027
- Résidence principale/secondaire
- Investissement locatif
- Votre suivi personnalisé Peterson.fr
- Garanti prix direct promoteur
Prestations et équipements
À propos du programme
Des cascades de terrasses, de la verdure tout autour et des commerces au pied de chez vous…Cette nouvelle adresse à Pontoise porte haut la qualité de vie, en proposant des appartements neufs chaleureux et presque tous agrandis par des balcons, terrasses ou jardins privatifs. Du studio au 3 pièces, laissez-vous séduire par le confort d’intérieurs contemporains, déclinant pour certains des plans évolutifs capables de se transformer selon vos besoins. Eligible à la TVA réduite, cette résidence neuve est également disponible avec la solution Cogedim Access, permettant de devenir propriétaire sans apport, et avec des mensualités proches de celles d’un loyer.
Pontoise
En travaux

Accédez à notre page dédiée au programme "Allure" pour tout savoir sur la résidence, ses prestations et son quartier.


