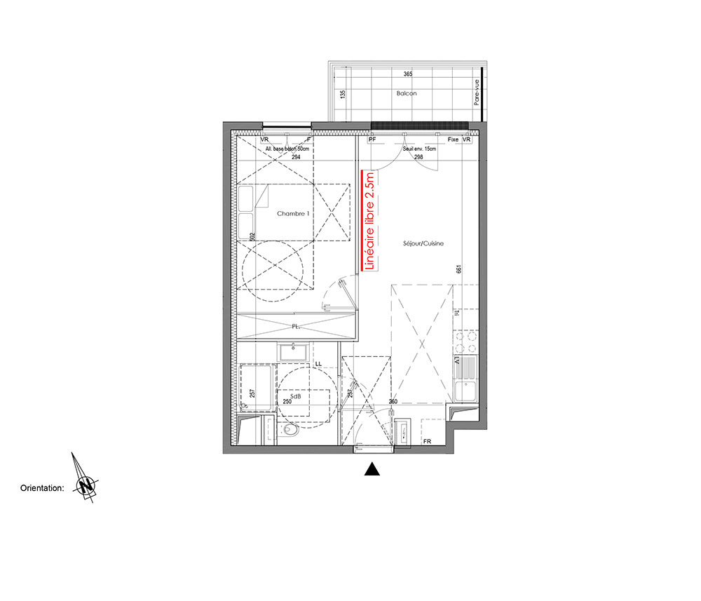
Appartement T2 n°231 à Le Blanc-Mesnil (93150)
Prix : nous consulter
Les Terrasses D'ariane à Le Blanc-Mesnil
À noter
- Le Blanc-Mesnil
- Livraison 4ème trimestre 2027
- Résidence principale/secondaire
- Investissement locatif
- Votre suivi personnalisé Peterson.fr
- Garanti prix direct promoteur
Prestations et équipements
À propos du programme
A 3 minutes à pied du futur METRO Ligne 17 Lancement commercial les 21 et 22 septembre ! Profitez d'une opportunité exceptionnelle d'habiter à 300m de la future gare de METRO du Grand Paris Express Le Bourget aéroport (ligne 17 vers Saint Denis Pleyel en 9 min et vers le centre de Paris à moins de 30 min). Dans un quartier d'avenir en pleine transformation, proche du centre commercial Plein Air, découvrez une résidence à l'architecture élégante et aux appartements d'exception déclinés du Studio au 5 pièces. Les appartements profitent, pour la plupart de généreux espaces extérieurs (balcons, jardins privatifs ou encore magnifiques terrasses aux derniers étages). PROFITEZ de la TVA 5,5% pour HABITER Inscrivez-vous vite pour être les premiers informés
Le Blanc-Mesnil
En travaux

Accédez à notre page dédiée au programme "Les Terrasses D'ariane" pour tout savoir sur la résidence, ses prestations et son quartier.


