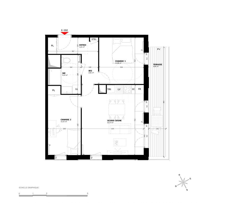
Appartement T3 n°LE102 à Colombes (92700)
Prix : nous consulter
Plurielles à Colombes
À noter
- Colombes
- Livraison 2ème trimestre 2028
- Résidence principale/secondaire
- Investissement locatif
- Votre suivi personnalisé Peterson.fr
- Garanti prix direct promoteur
Prestations et équipements
À propos du programme
PROCHAINEMENT A COLOMBES (92) – rue des Champarons/avenue de Stalingrad : VINCI Immobilier et BOUYGUES IMMOBILIER s’associent pour vous proposer une résidence aux lignes modernes articulée autour d’un cœur d’îlot paysager. Vous serez séduits par un large choix d’appartements neufs du studio au 5 pièces aux prestations de qualité conçus pour répondre à tous vos besoins, et, prolongés pour la plupart de généreux espaces extérieurs : balcons, terrasses et jardins privatifs au rez-de-chaussée. Dans un quartier dynamique en plein essor, les commerces de proximité, les équipements scolaires, publics et sportifs faciliteront votre quotidien. Située à 450 mètres de la résidence, le tramway T1 vous mènera au métro M13 Asnières-Les Courtilles en 2 minutes. Vous profiterez pour l’acquisition de votre résidence principale du nouveau PTZ et d’une TVA réduite à 5,5% (sous conditions, disponibles auprès de nos conseillers).
Colombes
En travaux

Accédez à notre page dédiée au programme "Plurielles" pour tout savoir sur la résidence, ses prestations et son quartier.
Autres biens disponibles
Investissez malin !
Ce programme peut bénéficier de nombreux avantages financiers adaptés à votre projet immobilier neuf :
Je recherche un bien pour...





