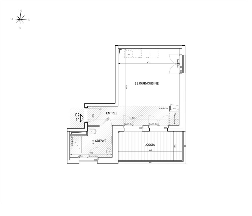
Appartement T1 n°E2091 à Villeurbanne (69100)
Prix : nous consulter
Egerie à Villeurbanne
À noter
- Villeurbanne
- Livraison 2ème trimestre 2028
- Résidence principale/secondaire
- Investissement locatif
- Votre suivi personnalisé Peterson.fr
- Garanti prix direct promoteur
À propos du programme
Dans le quartier emblématique Gratte-Ciel, Cogedim réinvente l'art de vivre en ville. Une architecture iconique aux lignes aériennes et des volumes en gradins qui subliment la lumière naturelle créent un cadre de vie inédit.
Du studio au 5 pièces, découvrez des appartements aux orientations multiples, prolongés de balcons voire de terrasses panoramiques jusqu'à 50m².
Rooftops partagés, halls Art Déco, emplacement privilégié à 3 min du métro... cette résidence d’exception comblera toutes vos attentes.
Villeurbanne
En travaux

Accédez à notre page dédiée au programme "Egerie" pour tout savoir sur la résidence, ses prestations et son quartier.
Autres biens disponibles
« Egerie » : présentation du nouveau projet immobilier
« Egerie » est un programme immobilier dans le neuf à Villeurbanne. 109 appartements et duplex neufs sont compris dans ce projet. À l'heure actuelle, 33 d'entre eux sont toujours disponibles. Allant du T1 au T5, ils peuvent servir de résidence principale ou secondaire mais sont aussi adaptés pour un investissement locatif. Remarquez que les logements sont éligibles aux dispositifs de droit commun et LMNP (loueur en meublé non professionnel) hors bail commercial et seront prêts à être livrés au 2e trimestre 2028.




